Dream Home Floor Plan

2102 sq ft
195 m²
2 Levels
1 Bedroom
2 Baths

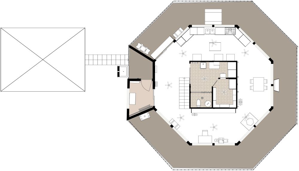
There are two octagonal levels in this dream home floor plan, as well as a garage. On each level, there's an indoor section surrounded by an outdoor section and plenty of windows between each. In the center of each indoor section is a walled-off section with a bathroom and a toilet. On one level, there's a kitchen which flows into the dining area with a table and four chairs. This flows into a study area with a desk and a chair. On another level, there's a bedroom with a double bed. This flows into the home gym which has a treadmill and a hot tub. There's also an outdoor area with a couple of chaise longues. Overall, this is an unconventional home with an open floor plan, but it has stunning views and more than enough extra space for you to set up in any way you like.


Made by
Home Designs

Similar Floor Plans


More From This Contributor