L-Shaped Kitchen Floor Plan With Dining Table

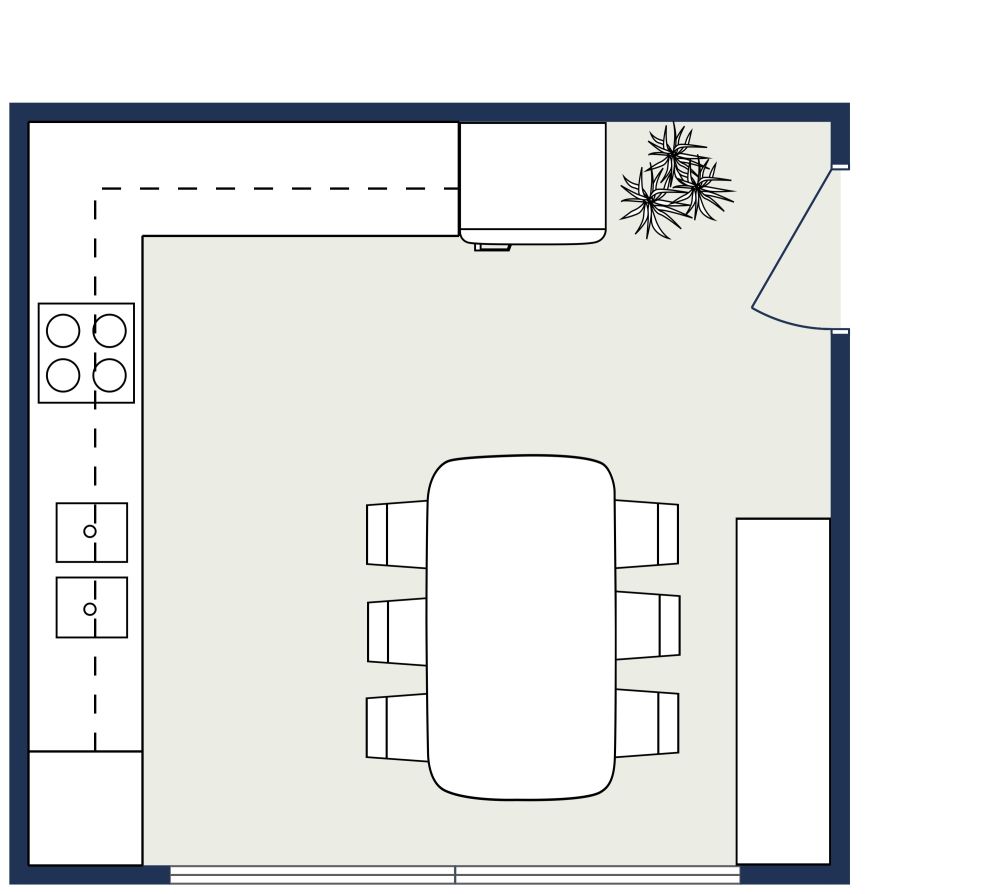
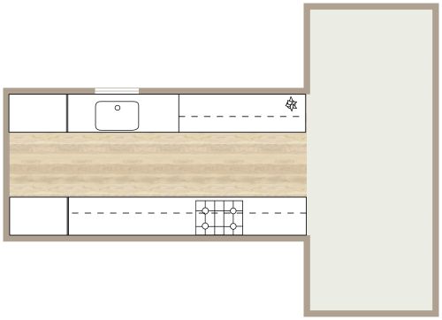
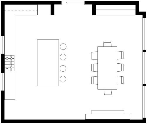
Although this L-shaped kitchen floor plan with dining table is only 178 square feet, it still has plenty of space for cooking and eating. There's a lot of counter space, with a range, a double bowl sink, a refrigerator and overhead/base cabinets. The light blue color of the kitchen area complements the dark brown and beige color of the dining area which is also surprisingly spacious. The dining table is large enough to seat six, and there's still some space left over for a sideboard which provides extra storage space. Two large windows overlooking the dining area provide a lot of natural light. A rug under the dining area provides a visual separation from the rest of the room, which has hardwood floors. Overall, this is a homey kitchen and dining area where you can enjoy both, cooking and eating.

Made by
Kitchen Designs
178 sq ft
16 m2
1 Level

This plan can be customized

Edit This Project

Want to edit this floor plan or create your own?

Download App

Similar Floor Plans


More From This Supplier