Classic and Stylish Coffee Shop Floor Plan

2398 sq ft
223 m²

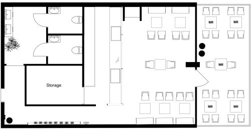
Sometimes, the simplest coffee shops are the ones that make the best impression on their loyal patrons and first-time visitors alike. This classic and stylish coffee shop floor plan proves that a space doesn't have to have an array of accessories or over-the-top decor to feel special. The indoor dining area features simple wooden square tables and crisp white walls. These are complemented by soft blue suede chairs and white-washed flooring. The aesthetic of the indoor decor is extended to a lovely outdoor seating area with matching tables and chairs. The barista space is made up of one long black countertop and a second white one. A generous storage area is tucked behind the bar area. The chic bathroom includes two roomy stalls with vanity areas within and outside of them. If you're looking for a coffee shop that is effortlessly stylish and comfortable, this is the one for you.



Similar Floor Plans


More From This Contributor