Playful Hotel Room Interior Design

322 sq ft
30 m²

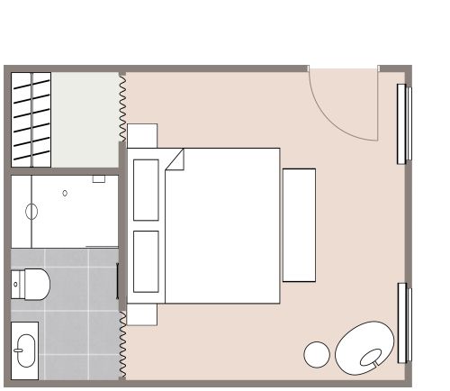
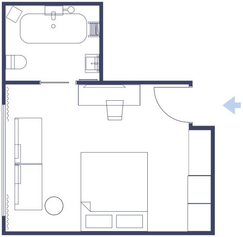
As opposed to most hotel rooms, which are decorated in neutrals, this playful hotel room interior design has a lot of personality. There's a double bed, with a turquoise blue rug underneath, in the center of the room. There's a checked loveseat in shades of blue and cream in one corner, a kitchenette and TV in another corner and a closet where guests can unpack. There's also a circular window across from the bed and a built-in desk in front of it where guests can get some work done. The floor of the bathroom is a cheery yellow which gives an active feel to the space. There's a shower and a toilet with a divider in-between, as well as a long sink which is perfect for holding toiletries. Overall, this hotel room has a pleasant, lively feel which guests are sure to remember.



Similar Floor Plans


More From This Contributor