Grand 3 Story 8 Bedroom House Plan

8438 sq ft
784 m²
3 Levels
8 Bedrooms
5 Baths
1 Half Bath

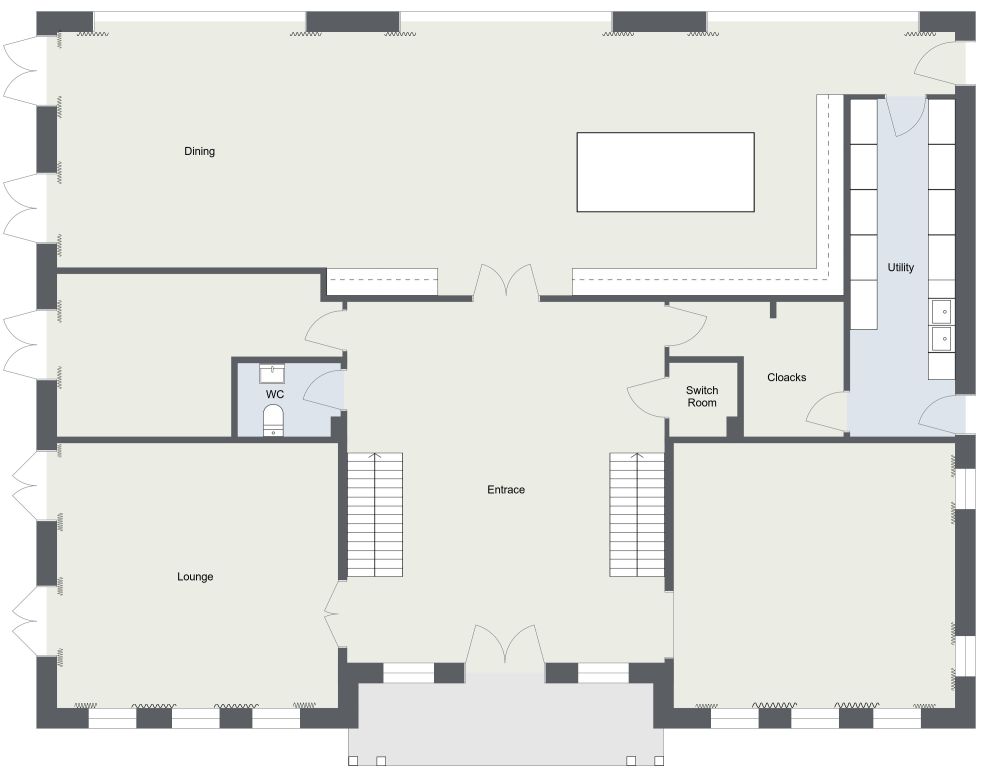
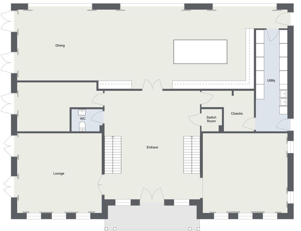
If you have a large family or you often entertain friends who stay over, then you will love this grand 3 story 8 bedroom house plan. On the first floor, there's a passage as you enter, a lounge to the left, an extra room to the right, a WC with a toilet and sink and a long dining area with sideboards and an island. There's also a switch room, a cloakroom and a utility area with two long counters and two sinks. On the second floor, there are two large guest bedrooms and two smaller bedrooms, along with two bathrooms with showers and toilets. On the third floor, there are two medium-sized bedrooms and two smaller bedrooms. There are also three bathrooms with tubs, showers, toilets and sinks. There's a square gallery where you can hang artworks and a balcony running the length of the house.


Made by
Marsh & Co

Similar Floor Plans


More From This Contributor