3 Story 5 Bedroom Layout

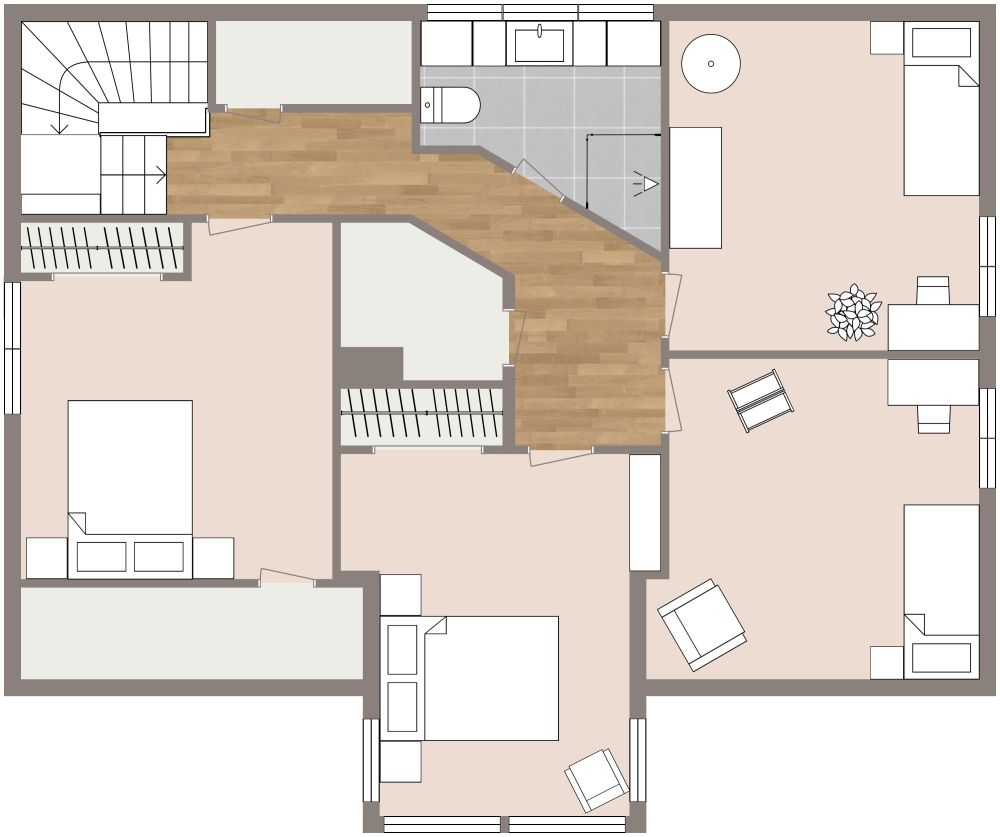
If your property has a steep slope or hill, take a look at this 3 story 5 bedroom layout. On the basement level, the garage, which sits lower than the rest of the building, has a short set of stairs up to a laundry and utility room. On the opposite side of this level, a standalone apartment unit, accessed from a lovely terrace, features a living room, kitchen, ¾ bathroom, and compact bedroom. Towards the center of this level, notice the basement family room, game room, or play space. This area, part of the main home, is accessed via stairs from the ground floor. As part of this level is underground, there are no windows on the north side of the floor plan. The main home entrance on the ground floor features double doors that lead into a spacious entry foyer. This large room features built-in storage, a ¾ bathroom, and two sets of stairs: one set, located behind a door, leads down to the basement family room, and a second u-shaped stair leads up to the top floor. This main living space includes a large kitchen, living room, reading nook, family room, and large terrace. The top floor of this large house plan features 4 bedrooms that share a ¾ bathroom. A practical storage room in the center of the level contains a handy laundry chute to send dirty clothing down to a laundry cupboard in the basement.

Made by
Home Designs
3114 sq ft
289 m2
3 Levels
5 Bedrooms
3 Baths

This plan can be customized

Edit This Project

Want to edit this floor plan or create your own?

Download App

Similar Floor Plans


More From This Supplier