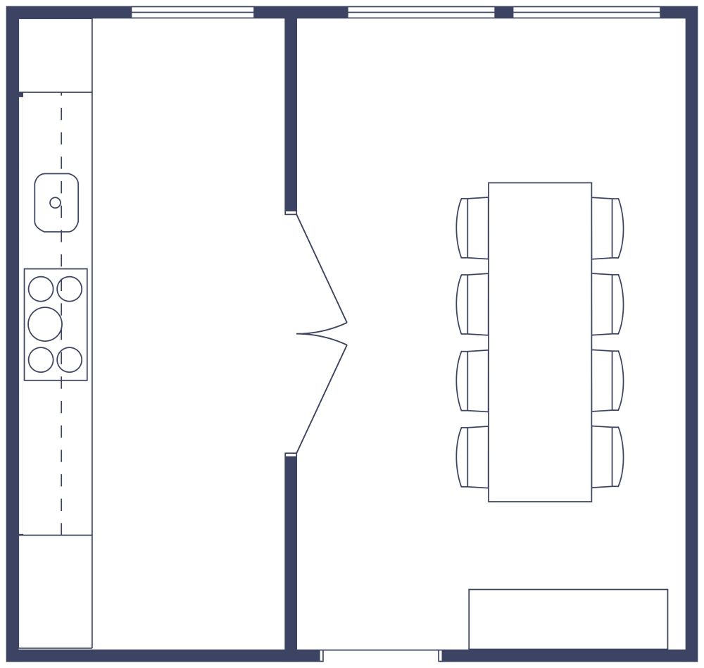
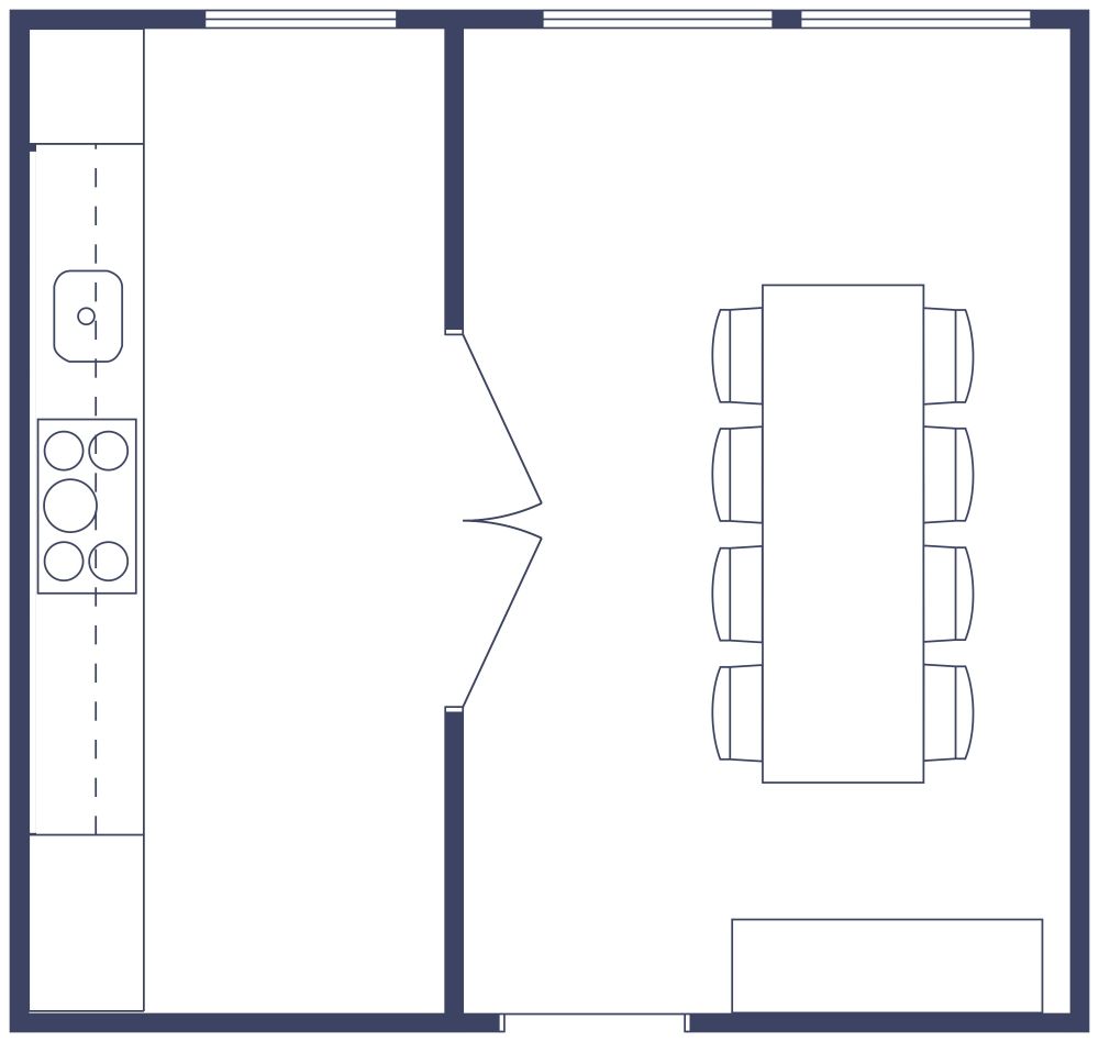
Single Wall Kitchen With Blue Accents

294 sq ft
27 m²

There's a crisp, fresh feel in the blue and white décor of this single wall kitchen with blue accents. The kitchen and dining area are separated by a double door which allows you to move easily between the two spaces. The kitchen has a long, white counter with overhead and base cabinets. It also has a range with five burners and a sink. At one end is a blue refrigerator while, at the other end, there is a tall, blue oven unit. On one wall, there is a floor-to-ceiling window which lets in plenty of natural light. The dining area is larger than the kitchen area and has two floor-to-ceiling windows. You can place a long dining table with eight chairs as well as a sideboard in this area. Overall, this layout makes good use of the available space and has an active, cheerful feel.


Made by
Kitchen Designs

Similar Floor Plans


More From This Contributor