Commercial Landscape Design

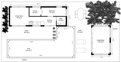
Spacious, lovely, and inviting, this commercial landscape design can give any professional office setting a modern and stylish vibe. Three rectangular office buildings surround a well-manicured garden area. The garden includes small bushes and patches of grass strategically sprinkled throughout a dirt pathway. Two of the office buildings have two entrances, while the third has one. A fourth office building with one entrance can be found perpendicular to the other three; they're connected by a small pathway. Each office building features an open floor plan and light wood floors. On the other side of the buildings, a large patio area includes two handsome benches and five perfectly rounded shrubs. Four parking spaces are conveniently positioned next to the patio area, and lush green grass surrounds the entire property, giving it a welcoming ambiance.

8616 sq ft
800 m2
1 Level

This plan can be customized

Edit This Project

Want to edit this floor plan or create your own?

Download App

Similar Floor Plans


More From This Supplier