House Plan Contemporary

745 sq ft
69 m²
1 Level
2 Bedrooms
1 Bath
1 Half Bath

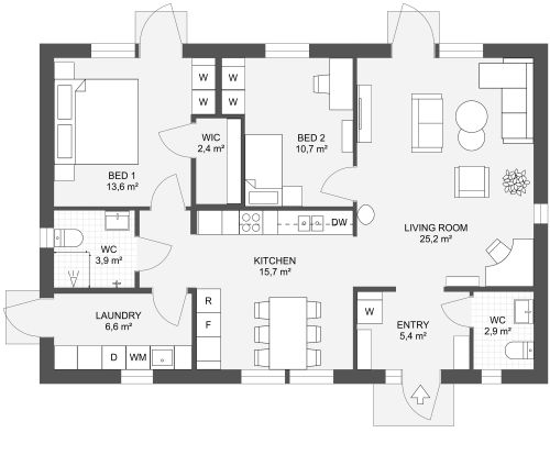
What's not to love about this house plan contemporary? The one-story layout includes two bedrooms, one bathroom, and one half-bathroom. Crisp white walls can be found throughout the entire home, along with rustic, modern hardwood floors. Through the front door, a small entryway provides the perfect space for a shoe rack and storage cabinet. The open floor plan allows the living room, dining room, and kitchen to flow effortlessly together. Simple white cabinets and marble countertops can be found in the kitchen, while the living room and dining room hold charming wooden furniture and minimalist cabinetry. Windows in the living room and kitchen allow lots of sunlight to shine into the open space. A pantry lies on the side of the kitchen. The small bedroom includes a window and a closet. The Master bedroom has a large window and plenty of space for a desk, a bed, and an armoire.


Made by
Studio BARÁK

Similar Floor Plans


More From This Contributor