Container House Layout

3331 sq ft
310 m²
1 Level
4 Bedrooms
3 Baths

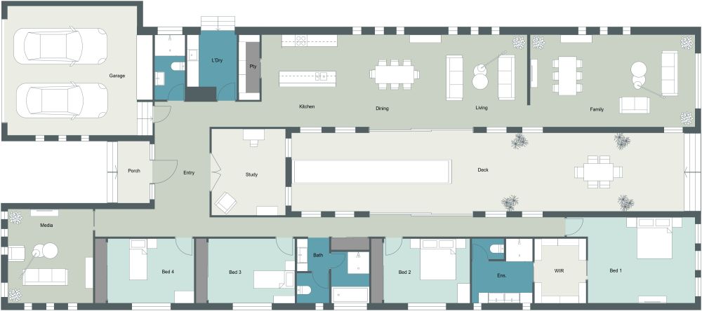
Bright, open, and spacious, this container house layout is as comfortable as it is beautiful. The U-shaped floor plan is built around a long, thin patio that includes plenty of space for outdoor furniture and a narrow, sparkling pool. The container house layout features four bedrooms and two and a half bathrooms, including a primary bedroom with a large walk-in closet. The home comes complete with three separate living spaces. One family room, another family room with a connected dining area, and finally a spacious living space that includes a living room, a dining area, and a kitchen with a center island and a pantry. There's also an office with a window that overlooks the pool and patio, perfect for working from home in comfort. This container house also includes a mud room and a two-car garage. Light floors and a combination of green accents make this home feel modern.


Made by
Home Designs

Similar Floor Plans


More From This Contributor