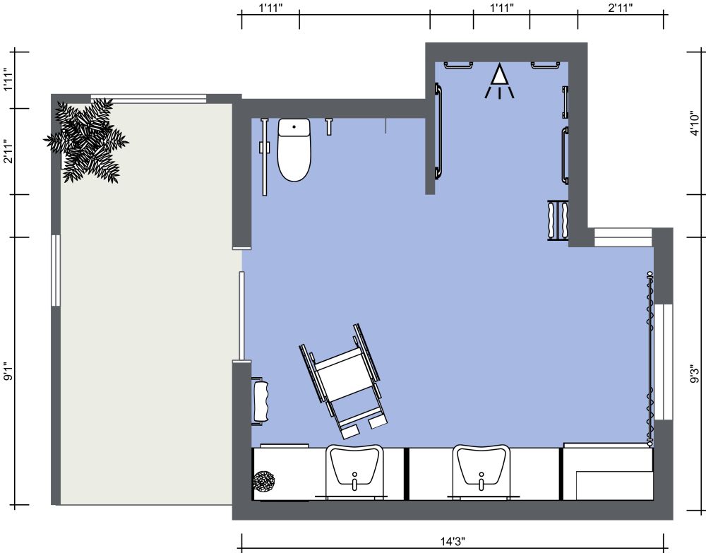
Senior Accessible Bathroom

172 sq ft
16 m²

Sleek, sophisticated, and bold, this senior accessible bathroom will make your home feel like a luxury hotel. Simple black tiles covering the floor and the shower are surrounded by elaborately-detailed black and white tiles, creating a luxurious, eye-catching appearance. A long wooden countertop with cabinets underneath runs from wall to wall on one side of the bathroom with a pair of sinks at its center. Across from the sinks, two separate areas are set apart: one for the toilet, and the other for the walk-in shower. A window can be found on the small wall between the shower and the sinks. Gold light fixtures, including one hanging at the center of the room adds a modern touch to this elegant floor plan. Teal accessories and potted plants pull the look of the space together making it feel stylish yet homey. Spending time in this senior accessible bathroom will be a pleasure.


Made by
Andrea Platzer

Similar Floor Plans


More From This Contributor