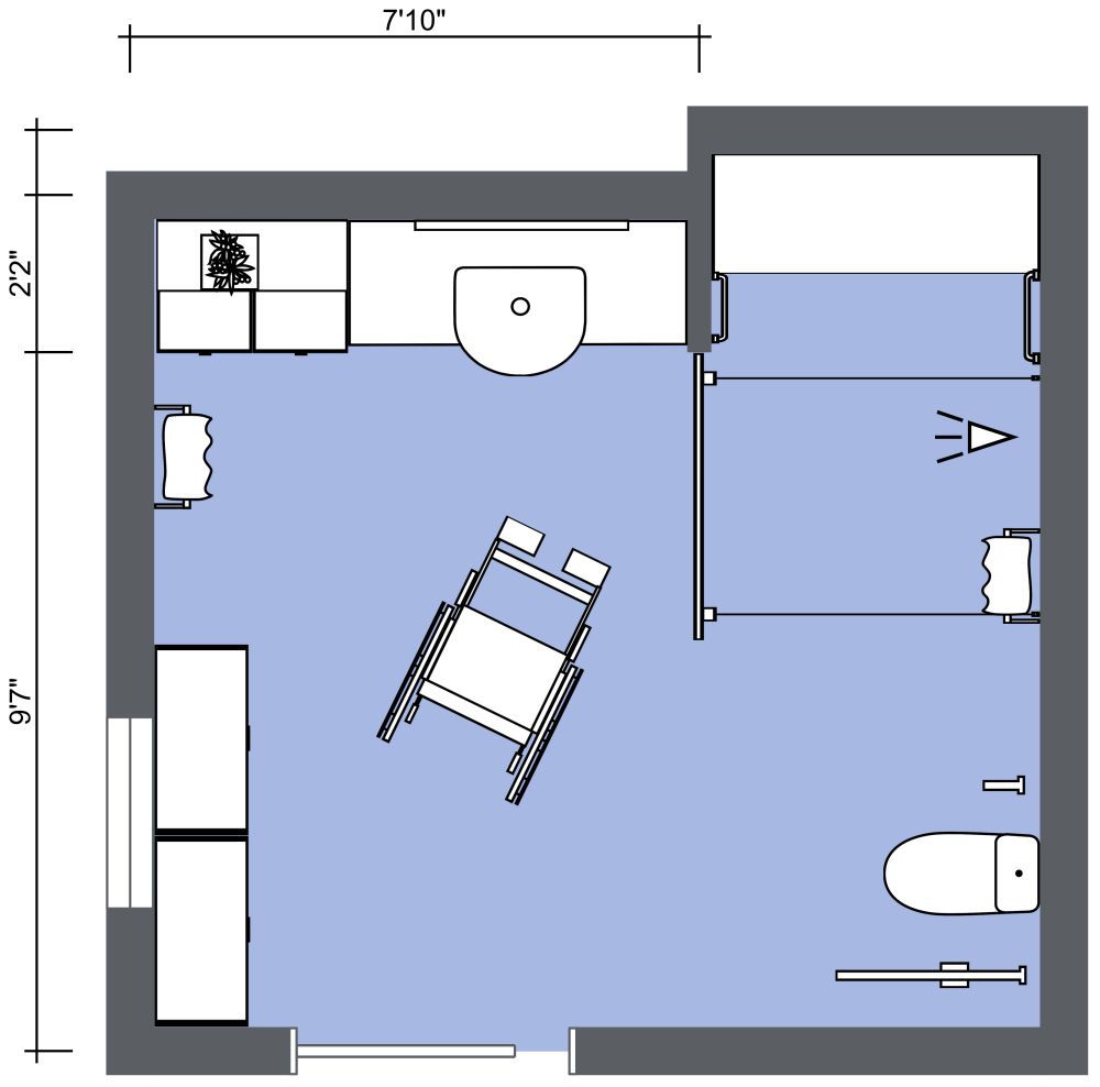
Accessible Bathroom Design Layout

139 sq ft
13 m²

Personality and functionality are at the forefront of this accessible bathroom design layout. Grey and taupe tile flooring complements the wooden details in this space, including the countertop and a built-in seat in the shower. Through the sliding door, you'll find an open space that includes a toilet to the right, a wall hanging cabinet to the left, directly across from the entrance, and a spacious glass shower in the corner. A small window is positioned in the corner of the room over the wall hanging cabinet, letting in much-needed natural light. A cabinet next to the sink provides storage space for toiletries and linens. Safety grab bars are conveniently located by the toilet and in the shower. The tiled walls and accents throughout the room give it an earthy, mood ambiance.


Made by
Andrea Platzer

Similar Floor Plans


More From This Contributor