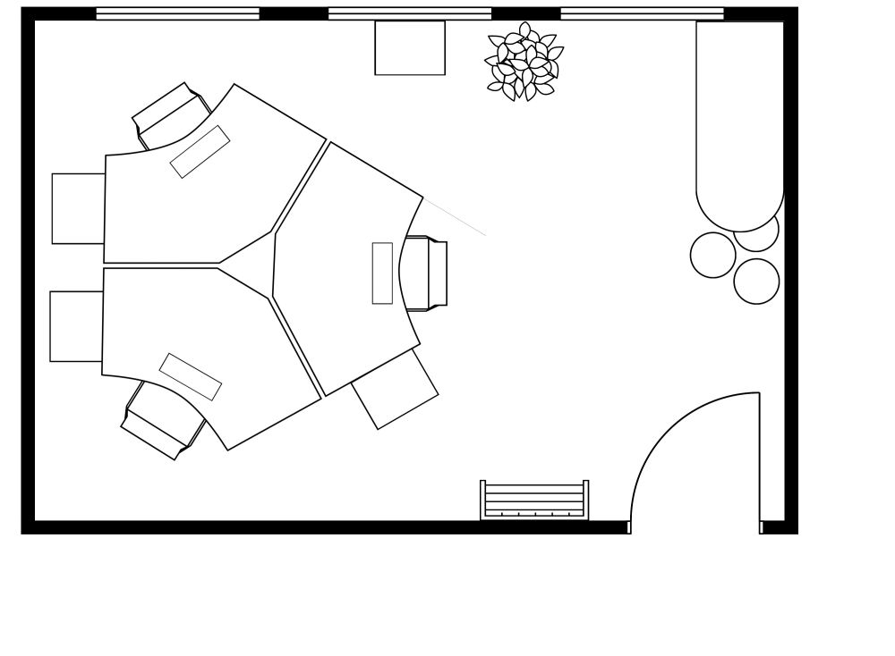
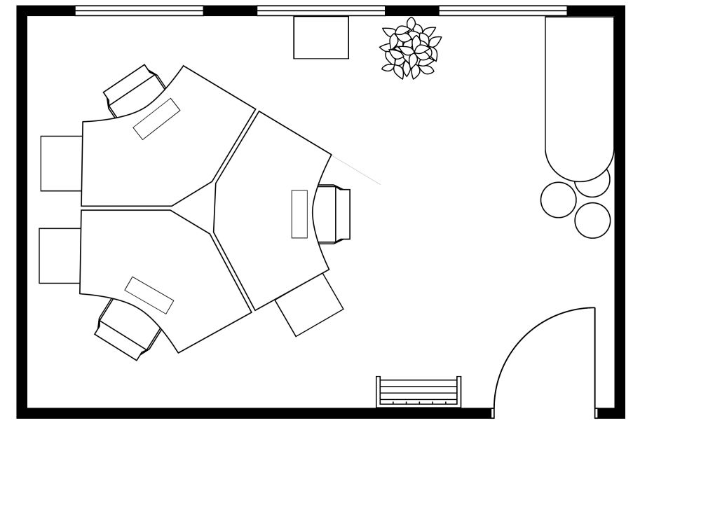
Office Floor Plan 18x12

215 sq ft
20 m²

Designed with functionality in mind, this office floor plan 18x12 doesn't waste an inch of space. Three large windows line one of the walls of the space, letting in plenty of natural light that helps the room feel big and bright. The office has been customized to accommodate three individuals, each with a white desk, black office chair, and white filing cabinet all conveniently positioned together. Each desk has ample space for two monitors, a keyboard, and a mouse pad. A small table with a printer is located on the wall next to the windows. In the corner of the room, you'll find a slender grey table and three round stools, perfect for taking breaks and eating meals. A large wall hanging and an indoor plant add a warm touch to the otherwise simple office space.


Made by
Office Layouts

Similar Floor Plans


More From This Contributor