Victorian Style Bathroom

346 sq ft
32 m²

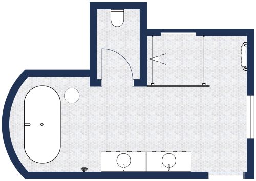
There's nothing ordinary or expected about this Victorian-style bathroom, which is as dramatic and elegant as it is cozy and comfortable. French doors lead into a spacious area adorned with rich, dark flooring and sophisticated wallpaper. A panel of windows lines one wall, complete with flowing curtain panels. The bathtub, positioned in the center of the room, serves as the focal point. An accent chair, area rug, and fireplace create the perfect atmosphere for pampering. In the corner of the room, a dresser provides convenient storage space. Tucked away in another corner is a small separate room featuring a pair of sinks, a rustic dresser, and an eye-catching chandelier hanging from the ceiling. You'll look forward to spending time in this cozy, one-of-a-kind bathroom.


Made by
Andrea Platzer

Similar Floor Plans


More From This Contributor