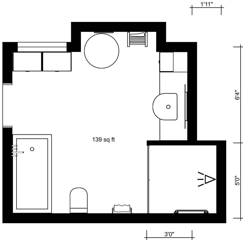
Luxury Modern Primary Bathroom Floor Plan

139 sq ft
13 m²

If you're looking for the perfect finishing touch to complete your dream primary suite, look no further than this luxurious modern bathroom floor plan. The room is adorned with crisp white tile flooring and sleek black-and-white walls. A large jacuzzi tub is positioned in one corner of the space, with a spacious walk-in shower directly across from it. A white toilet can be found between the tub and shower. Next to the shower is a sink with an elegant black marble countertop. An additional small counter with matching black marble and extra storage is located in the final corner of the space. Above it, a window lets in much-needed natural light. A black-and-white detailed area rug and a rich yellow ottoman add to the bathroom's coziness and modern style.


Made by
Andrea Platzer

Similar Floor Plans


More From This Contributor