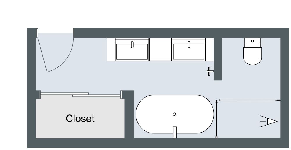
Modern Rectangular Bathroom Layout

146 sq ft
14 m²

Not one inch of space is wasted in this modern rectangular bathroom layout that is sure to make your home more comfortable and stylish. The slate gray walls and simple tiled flooring give this bathroom a minimalist vibe that feels clean and modern. The room features a pair of large white sinks that perfectly complement simple white cabinetry beneath them and sleek black mirrors above them. Across from the sinks a white soaking tub can be found that is as spacious as it is contemporary. A separate area for the toilet is positioned across from a walk-in shower, complete with gray and white tile flooring and gray-tinted glass walls. A generous-sized closet with a sliding door makes this bathroom even more functional and comfortable with plenty of room to store towels, toiletries, and other everyday essentials. You'll look forward to getting ready every morning in this simple yet attractive bathroom.



Similar Floor Plans


More From This Contributor