Discreet Kitchen With Large Island

625 sq ft
58 m²

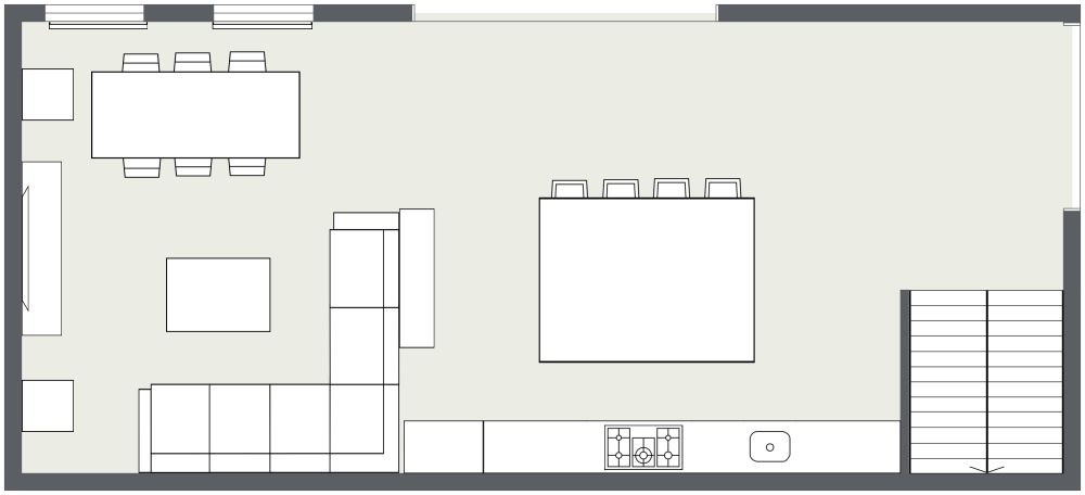
There are many ways in which one long space can be divided up for different purposes. In this discreet kitchen with large island, the space is neatly separated into a kitchen, a living area and a dining area. A long counter with a range and sink on one side and a large island on the other make this kitchen spacious and a joy to work in. By arranging stools on one side of the island, you can create a casual eat-in kitchen, perfect for those times when you're in a rush. But on the other side of the space, you can also have a proper dining area with a table that seats six. There's also room for a large, L-shaped sofa, coffee table and entertainment center. Overall, this is a gorgeous, well-lit space which is perfect for cooking, eating and relaxing.


Made by
Marsh & Co

Similar Floor Plans


More From This Contributor