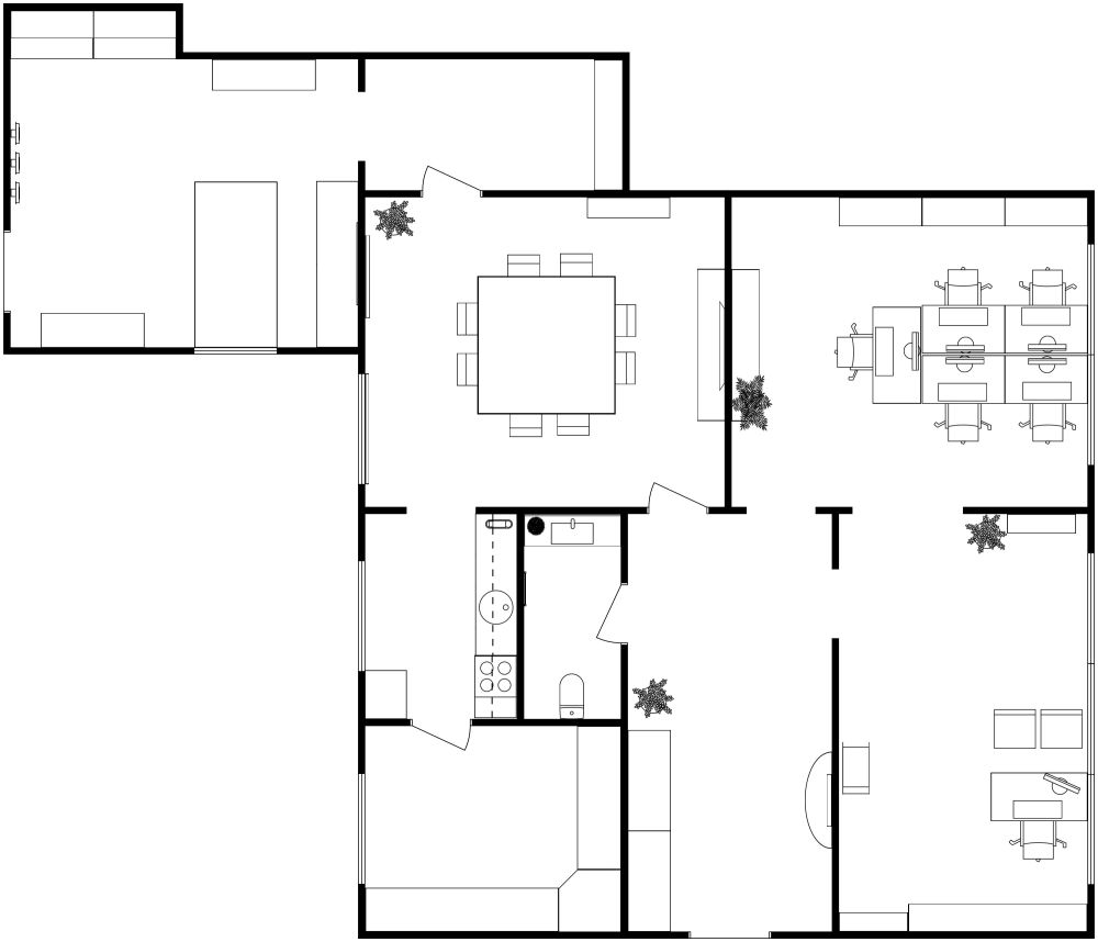
A dark color palette and functional design give this office layout a modern atmosphere that's sure to make coming to work a pleasure. Through the main door, you'll find an entryway, complete with a small accent table and a long console table. The office layout also features a spacious private office that includes a desk, a black swivel chair, and a pair of magenta armchairs, adding a much-needed pop of color. Next to this private office lies a room with one large desk broken up into five distinct workspaces. A conference room can be found at the center of the office layout, including a wooden table and eight printed chairs. A small kitchen space is connected to the conference room with an additional room beyond it that includes a white L-shaped countertop. Another spacious office lies on the other side of the conference room with room for lots of storage.