Perfect Office for Seminars With Multiple Restrooms

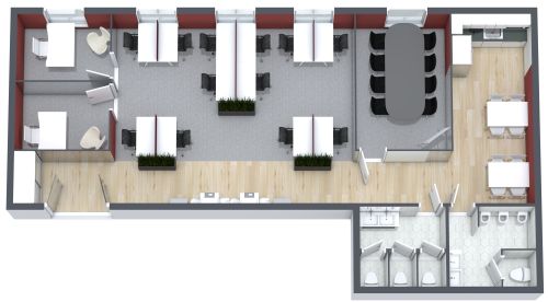
When you have different staff members working on different projects, it makes sense to put them in different offices. You can do this in this perfect office for seminars with multiple restrooms. There are three separate office spaces with four, three and two workstations respectively. The staff members will sit facing each other, which makes it easier to have discussions about the projects they are working on. There's also a conference room where one can hold seminars and training, in addition to doing presentations. The conference room has room for twenty-eight people, in addition to the presenters. There's also a kitchen with a dining table, six chairs, a refrigerator and a sink. There are four toilets with sinks in each one and one full bathroom with a shower, toilet and sink. There's also a storage space where staff members can hang their coats.

Made by
Office Layouts
1356 sq ft
126 m2
1 Level

This plan can be customized

Edit This Project

Want to edit this floor plan or create your own?

Download App

Similar Floor Plans


More From This Supplier