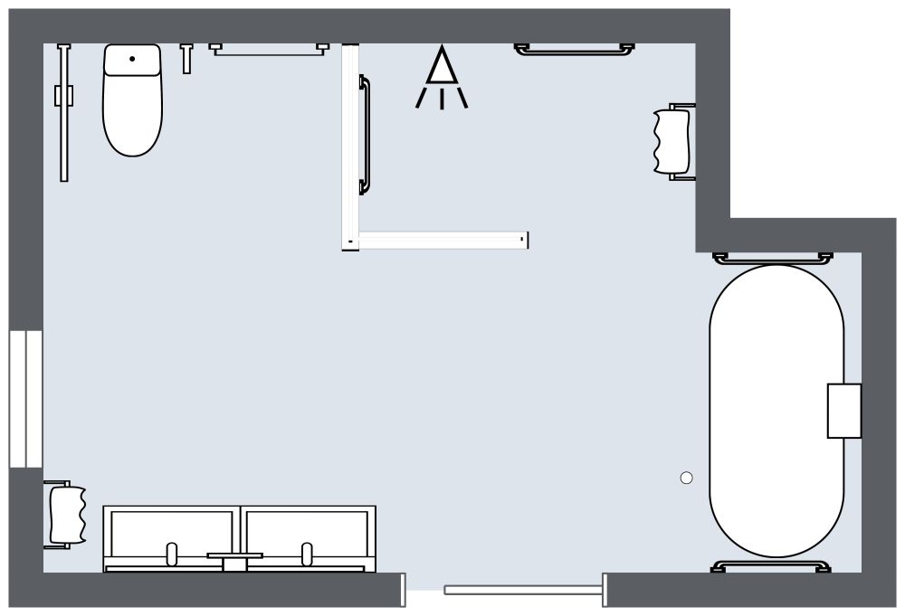
Senior Bathroom Floor Plan

143 sq ft
13 m²

If you're looking for an accessible bathroom that's as stylish as it is functional, look no further than this senior bathroom floor plan. The sliding glass door leads into a beautiful space adorned with grey and white detailed tile floors and cool teal walls. A pair of vanity units with sinks and black counters can be found on one wall with the toilet directly across from it. A walk-in, accessible shower is positioned next to the toilet, separated by an L-shaped divider. A contemporary soaking bathtub is positioned in the corner of the bathroom, with an accent wall behind it, perfect for relaxing in style. A small window is on the wall across from the bathtub with crisp white shutters that match the room's modern visual appeal. Elevate the look and feel of your home with this senior bathroom floor plan.


Made by
Andrea Platzer

Similar Floor Plans


More From This Contributor