Full Senior Bathroom

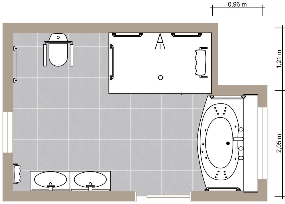
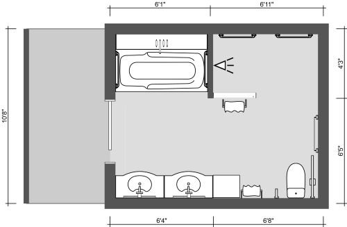
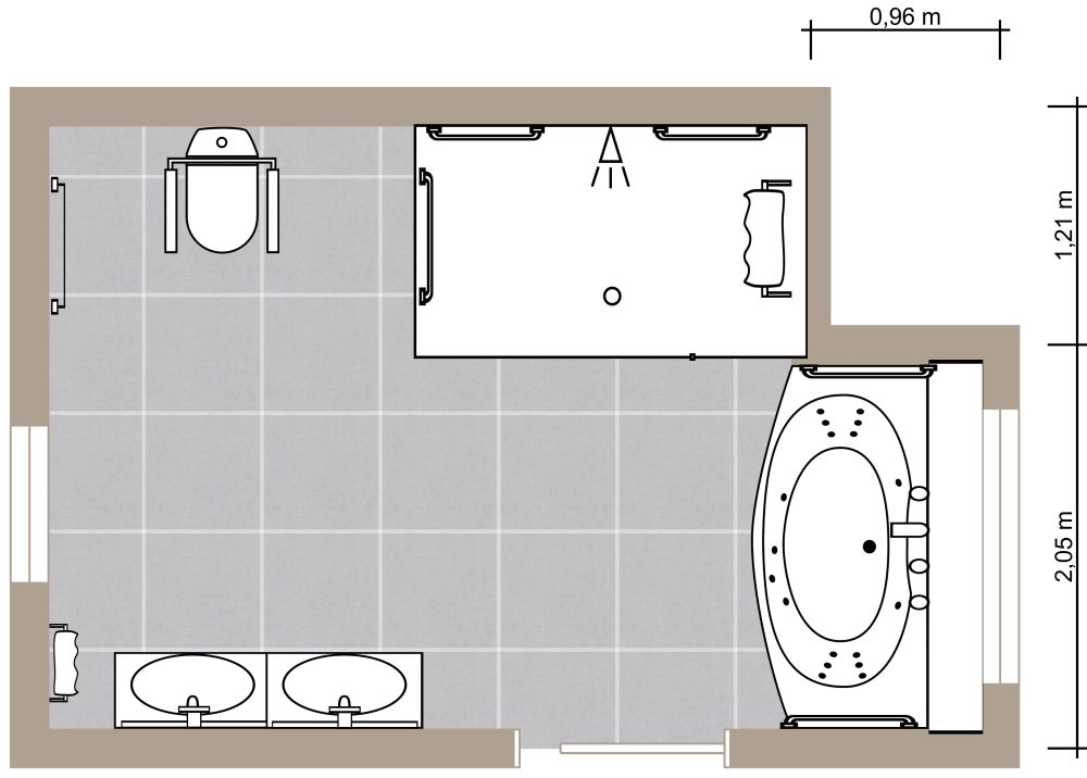
You're sure to love this full senior bathroom that is stylish, practical, and comfortable. The space includes a sliding door, a spacious walk-in shower with glass walls, and a pair of vanity units with crisp white sinks. The gorgeous hardwood and white subway tile floors are paired perfectly with teal and white detailed tiles in the shower and toilet area. A large jacuzzi tub is positioned in the corner of the room, complete with a large window directly above it and a ledge to place toiletries or decorations, such as candles. Another small window can be found on the wall across from the bathtub. Grab bars are conveniently placed by the toilet, bathtub, and toilet, ensuring that the entire room is safe for anyone to use.

Made by
Andrea Platzer
143 sq ft
13 m2
1 Level

This plan can be customized

Edit This Project

Want to edit this floor plan or create your own?

Download App

Similar Floor Plans


More From This Supplier