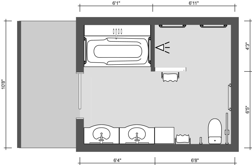
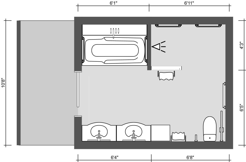
Senior Bathroom

124 sq ft
12 m²

Brimming with luxury and style, this chic senior bathroom doesn't waste an inch of space. Through its sliding door, you'll find a rectangular bathroom that's broken into four separate spaces. One side of the room holds a bathtub with a ledge directly behind it, perfect for holding toiletries and decor. On the same wall, there's also a walk-in, accessible shower. Across from the bathtub lies a pair of his and her sinks along with a small bathroom cabinet right next to them. The toilet can be found on the same wall as the sinks, across from the shower. The space features lovely grey marble flooring along with light grey and dark navy walls, giving the space a simple yet elegant aesthetic. This senior bathroom would surely add to the style, comfort, and functionality of virtually any home.



Similar Floor Plans


More From This Contributor