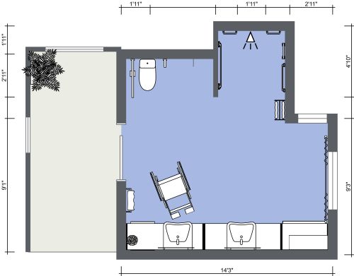
Men's ADA Bathroom

304 sq ft
28 m²

There's nothing ordinary or expected about this men's ADA bathroom. The entrance is open, making it easy for people to enter and exit freely. A khaki color scheme gives this public bathroom a cool, contemporary vibe, complete with tan tiles on the floors, tan walls in the main room, and stone accent walls in the stalls. Natural wood on the doors and the changing table add to the room's overall visual intrigue. The bathroom includes two urinals and two single stalls on one wall, three sinks directly across from them, and a wheelchair-accessible stall with its own sink. The sinks in the main room are also wheelchair accessible. Silver waste basins can be found in the main area by the changing table and sink as well as two more in the wheelchair accessible stall.



Similar Floor Plans


More From This Contributor