Jack and Jill Bathroom Idea

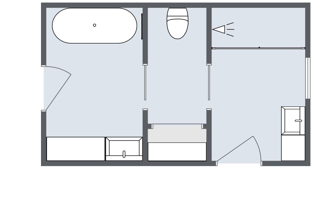
151 sq ft
14 m²

Here’s a Jack and Jill bathroom idea with a private toilet room in the center and entry doors on adjacent, rather than opposite, walls. On one side of the layout, a swing door leads to a zone containing a vanity sink and bathtub. On the other side of the floor plan, a swing door leads to a similar bathing zone with a walk-in shower option. The floating vanity sink on each side offers a long countertop and functional under-counter storage. From either side of the layout, pocket doors lead to the private toilet room, which also includes a spacious linen cabinet. The clean and elegant color palette features white walls, white vanity units, and marble floors and walls in the bathing areas. Engineered wood floors provide contrast, as do the black faucets, fixtures, and mirror frames.



Similar Floor Plans


More From This Contributor