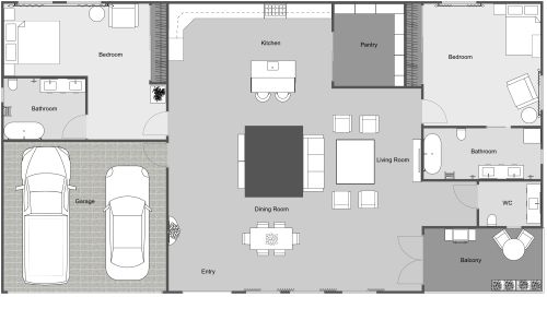
Small Retirement Home Floor Plan

Ideally suited for a simple and convenient lifestyle, this small retirement home floor plan delivers on every point of detail. The living room area, the bedroom and kitchen all have light-colored wooden floors for ease of maintenance and keeping clean. The living room is cozy and comfortable, yet large enough for different seating arrangements, including placing a dining table next to the kitchen. This leads into the kitchen area, which is designed for easy meal preparation, while still offering enough counter space and cabinetry or easy working and storage. The bedroom has good closet space and is between the living room and bathroom. The bathroom has a fully tiled floor. It is large and has s big walk-in shower the width of the bathroom.

570 sq ft
53 m2
1 Level

This plan can be customized

Edit This Project

Want to edit this floor plan or create your own?

Download App

Similar Floor Plans


More From This Supplier