Floor Plan for Retirement Living

1417 sq ft
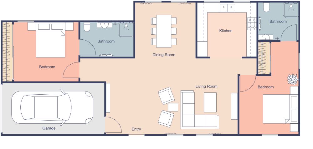
132 m²

Everything about this floor plan for retirement living feels luxurious and stylish. Upon entering through the front door, you'll find a charming open layout with a spacious living room flowing seamlessly into a separate dining room and kitchen. Handsome hardwood floors throughout create a warm and inviting atmosphere. The kitchen features sleek granite countertops, black appliances, and two windows that allow natural light to pour in. Beyond the kitchen, you'll discover a large bedroom with a closet and a private bathroom, with eye-catching tile floors and a walk-in shower. On the opposite side of the home, there is a second bedroom and matching bathroom, along with a one-car garage. Understated elegance and natural colors, complemented by soft hues of blue, contribute to this home's calming ambiance.



Similar Floor Plans


More From This Contributor