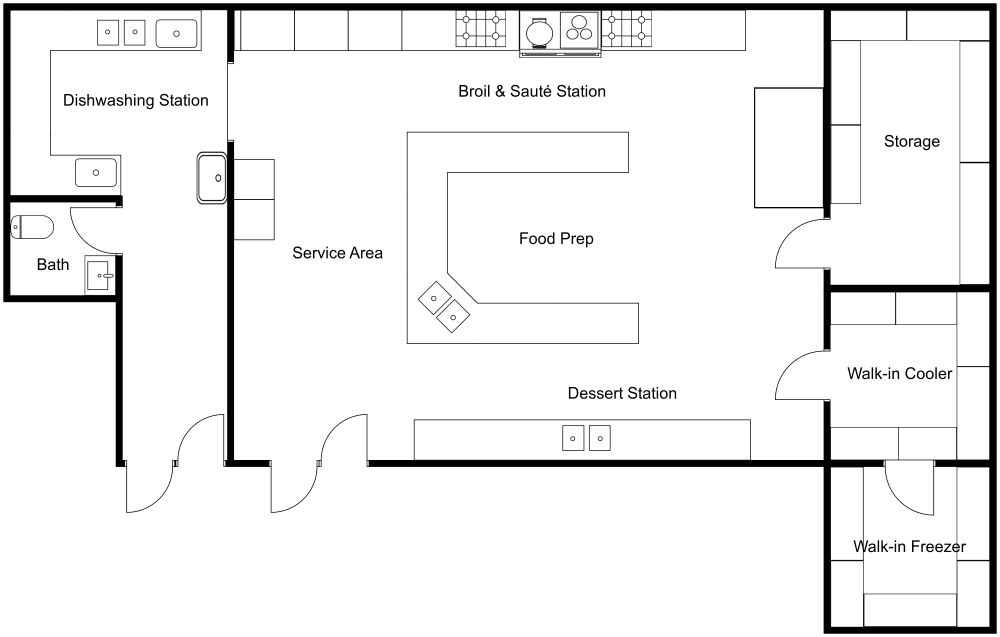
Restaurant Kitchen Plan

1074 sq ft
100 m²

Working in this restaurant kitchen plan will be a pleasure thanks to its contemporary style and open space. The main kitchen features an oversized room that includes two doors to enter and exit from. A long white countertop with a pair of sinks can be found on one wall. The adjacent wall holds the stoves and plenty of white cabinetry for storage. A giant U-shaped counter can be found at the center of the kitchen with cabinets underneath. Three storage rooms are connected to the kitchen, perfect for storing food and supplies. Next to the main kitchen is a smaller room for washing dishes, complete with multiple sinks and a U-shaped counter. A single-room bathroom is connected to the wash room. It features a toilet and a small sink in the corner. Slate flooring and white walls can be found in the kitchen and wash room.



Similar Floor Plans


More From This Contributor