1 Bedroom House

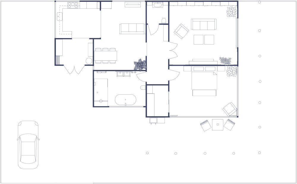
There's a linear, geometric feel in this 1 bedroom house which is decorated in shades of gray. The rectangular plot around the house is enclosed by a green picket fence. There's a garage in one corner, a large green area and a patio where you can sit and enjoy the outdoors. Inside the house, there's a kitchen with an L-shaped counter, a cooking range, a sink, a refrigerator and overhead and base cabinets. Adjoining the kitchen is a small living area with a three-seater couch and a TV. This flows into the dining area which has a table with six chairs. There's also another, larger living area with a loveseat and an armchair while the bedroom has a double bed and an armchair. There are two bathrooms; one has a toilet and a sink while the other has a bathtub, a shower, twin sinks and a toilet.

Made by
Home Designs
1502 sq ft
140 m2
1 Level
1 Bedroom
1 Bath
1 Half Bath

This plan can be customized

Edit This Project

Want to edit this floor plan or create your own?

Download App

Similar Floor Plans


More From This Supplier