Willow Barndominium House Plan

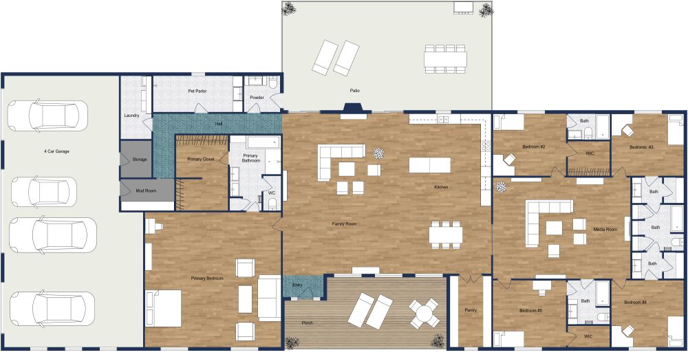
The Willow barndominium house plan is 4426 heated square feet and features 5 bedrooms, 5 full baths, and 1 half bathroom. Also included is an attached 1327 square foot 4 car garage. As you enter the home off the front porch of the Willow house plan you are greeted with plenty of space to unwind and relax in the open-concept main living areas of the home. The corner kitchen has ample counter space thanks to a large island, and adjacent to the kitchen you will find a nice-sized pantry to store small appliances and food. The master bedroom is large and spacious and includes a large master closet and master bathroom. This master suite provides plenty of room for you and your partner to relax and enjoy the peace and serenity within this space. There are 4 other secondary bedrooms on the other side of the home. They all have nice-sized closets and bathrooms attached to the bedroom. You will find an awesome media room located in between all the secondary bedrooms perfect for movie nights and entertaining family and friends. If you have pets, you will love the pet parlor. As you enter through the 4 car garage you will find a mudroom followed by a laundry room and a half bathroom making it easy to keep the rest of your home tidy and clean. You will love the 4-car garage that has plenty of space for vehicles, storage, and more. This home also includes a spacious front porch and back patio to enjoy the outdoors any time of year.

4426 sq ft
411 m2
1 Level
5 Bedrooms
5 Baths
1 Half Bath

This plan can be customized

Edit This Project

Want to edit this floor plan or create your own?

Download App

Similar Floor Plans


More From This Supplier