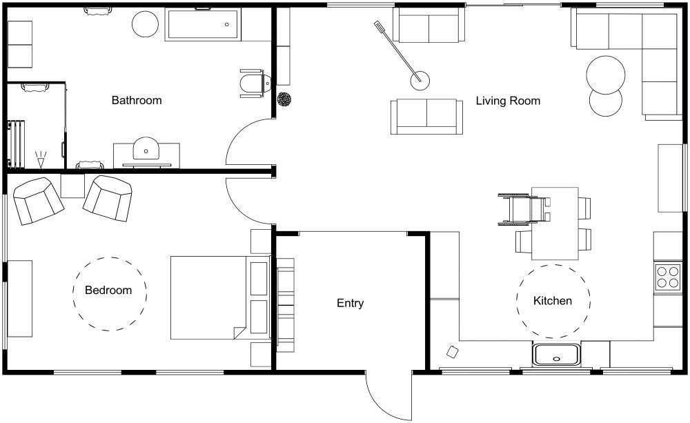
Floor Plan for Wheelchair Accessible House

1117 sq ft
104 m²

Modern, refined, and cozy, this 108 m² floor plan for a wheelchair accessible house is brimming with character and contemporary charm. Through the front door, you'll find a small entryway with handsome wood floors, an entryway table, and an archway that leads into the spacious main living area. The open-concept living space features a kitchen with U-shaped countertops, ample room for a dining set, and multiple seating arrangements. This area boasts the same wood floors and plenty of natural light streaming through the windows and back door. You'll love the bedroom, which includes dark wooded floors, four windows, charming furnishings, and a pair of brown leather accent chairs. The bathroom is as stylish as ever, with rich brown tile floors, crisp white walls, black fixtures, and a roll-in shower with gold features. Comfortable and sleek, this wheelchair-accessible home will impress anyone who visits.



Similar Floor Plans


More From This Contributor