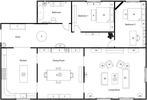
Floor Plan with ADA Compliant Bathroom

628 sq ft
58 m²

There’s plenty of space in this floor plan, featuring an ADA-compliant bathroom decorated in shades of cream, beige, and brown. The living area includes an L-shaped cream sofa, an armchair, and a coffee table. Across from this is a kitchen with an L-shaped counter, a roll-under sink, a refrigerator, and a cooking range. Adjoining the kitchen is a cozy dining area with a table and a chair. The bedroom contains a single bed, a lamp, and some storage; it also has ample space to accommodate a wheelchair. The bathroom features a toilet with safety rails for support, as well as a shower with a built-in seat, a sink, and plenty of room for wheelchair maneuverability. Overall, this floor plan is spacious enough for navigating with a wheelchair and includes everything a person might need in a home.



Similar Floor Plans


More From This Contributor