Shabby-Chic Bathroom Style

256 sq ft
24 m²

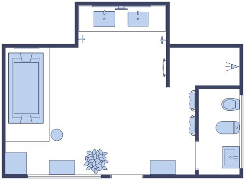
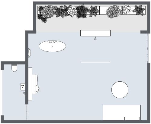
“Form follows function and design delivers delight" perfectly describes this shabby-chic bathroom style. Bathrooms are spaces for relaxing, pampering, and performing traditional activities easily and conveniently. The wide entrance door, accessible by wheelchair, leads to a spacious dressing room. This area offers ample hanging space, storage, and room for a carer or assistant if needed. The expansive bathroom features dual, well-separated wash basins, each with a large mirror. Both basins provide generous storage and countertop space, keeping essentials within easy reach. A large bath occupies a corner, flanked by windows on one wall. The commode is discreetly tucked away in a cubicle area, with sufficient space for easy accessibility. To the left of the wash basins, there's ample room for chairs, a sofa, and other furnishings. Both the bathroom and dressing room feature easy-to-maintain hardwood flooring. This design embodies comfort, convenience, abundant natural light, spaciousness, and tranquility.


Made by
Andrea Platzer

Similar Floor Plans


More From This Contributor