1000 sq ft Condo Floor Plan

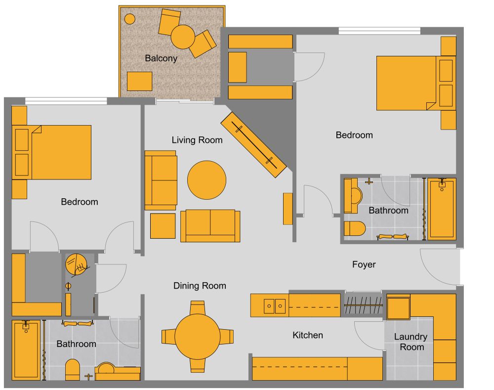
This 1000 sq ft condo floor plan exudes cozy style and warmth. A long, narrow foyer leads into the shared living and dining room area, which features lovely hardwood flooring for a homey yet stylish look. Off the dining area, you'll find a separate kitchen and laundry room, both with tan checkered flooring and ample storage space. On one side of the living space is a bedroom with a large window and tan carpet, along with a bathroom and hall closet. On the opposite side of the condo is the primary bedroom, complete with an attached bathroom and a walk-in closet. The condo is finished with a charming outdoor patio featuring stone flooring and a detailed guard rail, making it a perfect blend of comfort and charm.

Made by
Home Designs
1015 sq ft
94 m2
1 Level
2 Bedrooms
2 Baths

This plan can be customized

Edit This Project

Want to edit this floor plan or create your own?

Download App

Similar Floor Plans


More From This Supplier