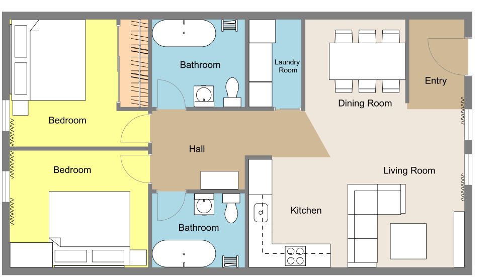
800 sq ft Condo Floor Plan​

800 sq ft
74 m²
1 Level
2 Bedrooms
2 Baths

If you're seeking a fabulous 800 sq ft condo floor plan that's both inviting and comfortable, this is the perfect choice. Upon entering, you'll find an open-concept layout that seamlessly combines the living room, kitchen, and dining room. The kitchen features charming white and blue tile flooring, creating a subtle separation from the living room. A partial wall also defines the dining area. A narrow laundry room is conveniently located across from the kitchen. Modern hardwood floors cover the primary living spaces. On either side of the hallway are two bathrooms, each with a soaking tub and eye-catching blue tile flooring. At the end of the hall, the two bedrooms are nestled in the corners of the condo, each with a window and wood laminate flooring.


Made by
Home Designs

Similar Floor Plans


More From This Contributor