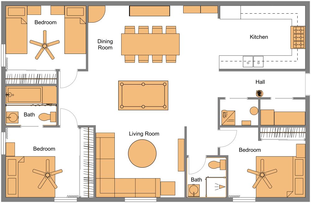
1200 sq ft Condo Floor Plan

1202 sq ft
112 m²
1 Level
3 Bedrooms
2 Baths

Experience comfort and convenience in this 1,200 sq ft condo with three bedrooms and two bathrooms. Enter through the hallway into a bright, open living area. On your left, you’ll find a quiet, private living room with plenty of wall space for your favorite art. Across from the living room is a spacious dining area that flows into a well-equipped kitchen with lots of counter space and cabinets, perfect for anyone who loves to cook. At the back of the condo, you’ll find the primary bedroom with its own bathroom and Bedroom 2. Bedroom 3 is located at the front of the condo. All bedrooms have generous closet space. Just off the entrance hall, there’s a mudroom with a granite countertop, extra cabinets, and a separate storage room, making this home as practical as it is comfortable.


Made by
Home Designs

Similar Floor Plans


More From This Contributor