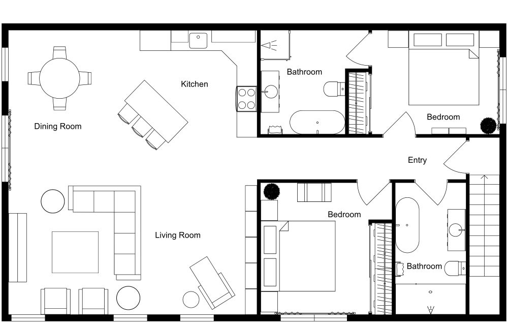
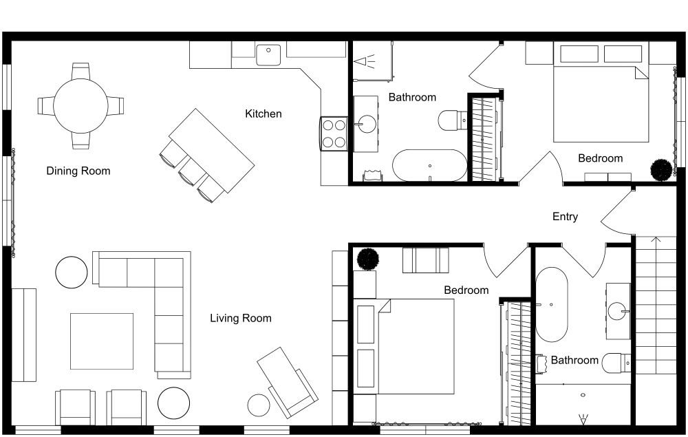
Condo Floor Plan with Garage​

1941 sq ft
180 m²
2 Levels
2 Bedrooms
2 Baths

This outstanding condo has an oversized two-car garage and a large, enclosed storage room that spans the entire garage. From the garage, head upstairs to your two-bedroom home. The primary bedroom is to the right of the entry, featuring an en suite bathroom with a bathtub and a separate shower. On the left, you’ll find the second bathroom, which also includes a separate tub and a wide shower. Next to this bathroom is Bedroom 2, which easily fits a double bed. Both bedrooms have ample closet space and large windows for plenty of natural light. The open-plan living area is spacious and filled with light from multiple windows. The modern kitchen offers lots of counter space and cabinets, plus a breakfast bar with seating for three, keeping the space open and inviting.


Made by
Home Designs

Similar Floor Plans


More From This Contributor