Neutral Color Hotel Room Floor Plan

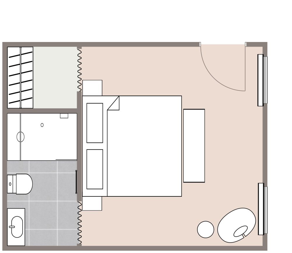
There's a calm and serene feel in the cream and beige shades you'll find in this neutral color hotel room floor plan. In the center of the room, there's a double bed with two side tables and lamps. There's also a bedroom bench at the foot of the table which can be used for storage or seating. There's a comfortable green chair in one corner of the room, beside a window, where guests can sit and read or enjoy a snack. Two soft rugs on either side of the bed ensure that guests won't step on a cold floor in the middle of the night. There's also a small walk-in closet with a rail and hooks, as well as a bathroom with a shower, a sink and a toilet. Overall, this is a cozy, functional hotel room with an aura of warmth.

239 sq ft
22 m2
1 Level

This plan can be customized

Edit This Project

Want to edit this floor plan or create your own?

Download App

Similar Floor Plans


More From This Supplier