Beautiful House Plan With Five Bedrooms

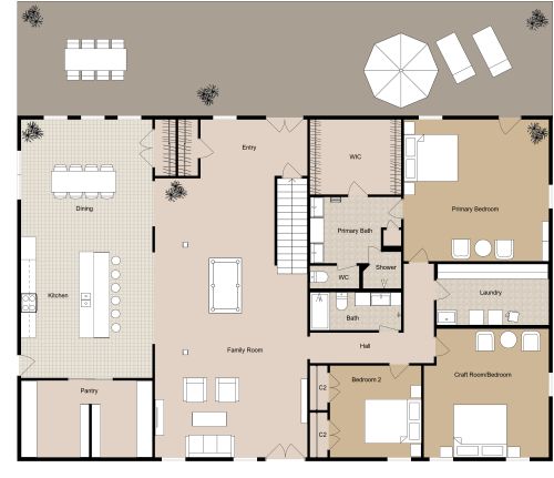
Enjoy the luxurious features of this beautiful single-story house plan with 5 bedrooms. The welcoming front verandah leads into an entry foyer and inviting formal living room with a fireplace as its focal point. An adjacent library can be furnished for reading or set up as an office. Facing the backyard, the open plan great room is the epicenter of daily living. Chefs will appreciate the kitchen’s large pantry and long island/breakfast bar. A nearby dining room can host 8 or more guests, and the lovely family room features glass French doors for easy access to indoor/outdoor living.

On the right side of the floor plan, dramatic double doors lead into a relaxing primary bedroom refuge featuring a sitting area, ample bedroom space, a walk-in closet, and an ensuite bathroom. On the other side of the floor plan, 4 secondary bedrooms surround an open playroom or teen area. The bedrooms share a large bathroom with a private toilet room, separate soaking tub, and enclosed shower. Nearby, a convenient laundry room and additional bathroom can be accessed from the house or from the backyard.

Made by
Home Designs
3263 sq ft
303 m2
1 Level
6 Bedrooms
3 Baths
1 Half Bath

This plan can be customized

Edit This Project

Want to edit this floor plan or create your own?

Download App

Similar Floor Plans


More From This Supplier