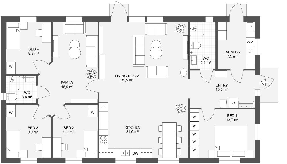
Smultronstället 149

1671 sq ft
155 m²
1 Level
4 Bedrooms
2 Baths

With a split-bedroom layout, the Smultronstallet 149 is a popular floor plan for those who prefer the primary bedroom to be separate from the secondary bedrooms. A compact front porch leads you into a large entry foyer area, complete with a coat closet and shoe storage, separate laundry room, and ¾ bathroom. The bright and spacious open concept great room includes a central fireplace and a large L-shaped kitchen with an oversize refrigerator, wall oven, range, double sink, and upper cabinet storage. A nearby table for 6 or 8 guests is helpful for prep and entertaining. On the right side of the floor plan, a spacious primary bedroom features a long storage wall. Grouped together on the left side of the floor plan, three secondary bedrooms share a ¾ bathroom complete with a sink, toilet, and shower. Furnish the adjacent family room space as a playroom, teen room, den, gym, or office, depending on your needs.


Made by
Bra Hus

Similar Floor Plans


More From This Contributor