1 Bedroom Tiny House Plan

431 sq ft
40 m²
1 Level
1 Bedroom
1 Bath

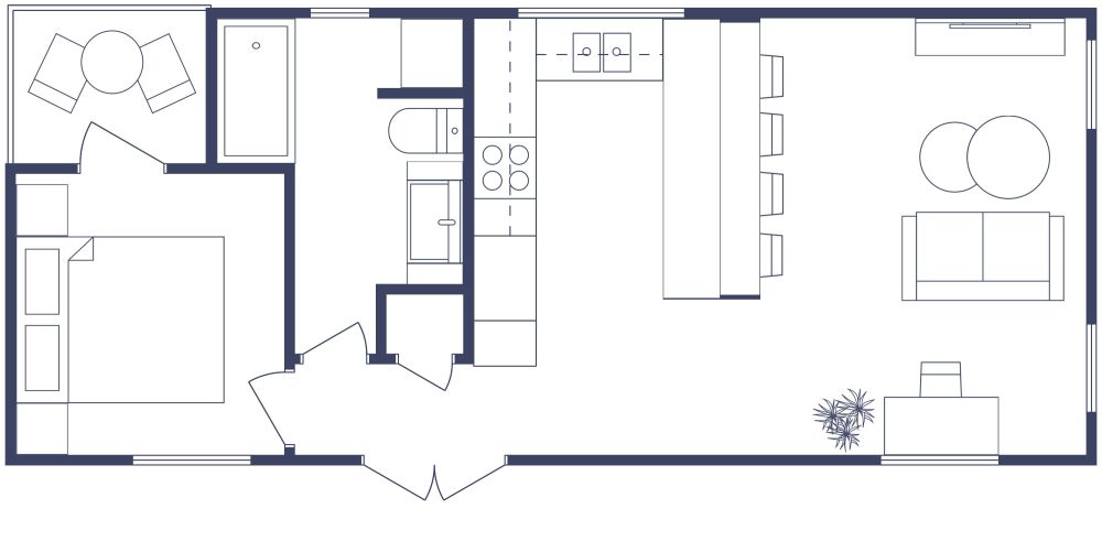
With an entrance foyer, private balcony off of the bedroom, and a washer/dryer, this 1 bedroom tiny house plan has features usually found in larger homes. As you enter, you can drop off your jacket or purse in the coat closet. To the right, you’ll find an open-plan kitchen and living area. The U-shape kitchen includes a floor-to-ceiling pantry, full-size refrigerator, range, double sink, and lots of counter space. The long breakfast bar allows for friends to join you for coffee or chat while you cook. The living room area can be arranged in multiple ways; we’ve added a desk for any work or studying you may do from home. You’ll appreciate the stacked washer dryer set located in the full bathroom. Another nice touch is the private patio accessed from the bedroom.


Made by
Home Designs

Similar Floor Plans


More From This Contributor