Tropical Master Bathroom Idea

545 sq ft
51 m²

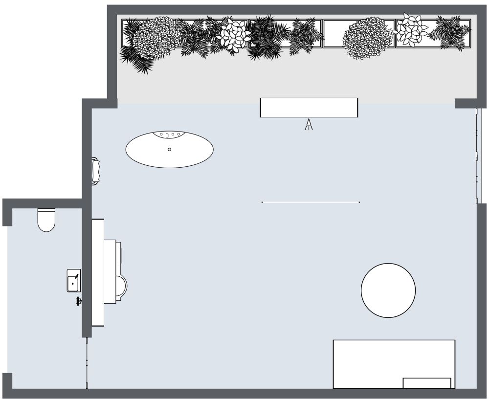
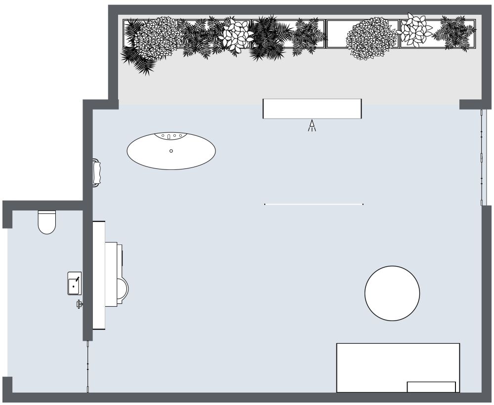
This tropical primary bathroom idea shows you how to create a spacious resort-like setting for the ultimate in relaxation. The floor plan features glass doors opening into a generous rectangular room with floor-to-ceiling windows overlooking a lush garden patio on one side. Enjoy garden views from the large soaking tub or the open shower space. The relaxation area features a lounge chair, coffee table, and wall-mounted fish tank. Add a yoga mat nearby for stretching. On the opposite wall, the layout shows a single vanity unit - customize with a double vanity if you prefer. An opaque glass door leads to a private toilet room with an additional single vanity. The décor features modern, clean lines and a tropical-inspired color palette of dark brown, black, white, and green. Waterproof mahogany engineered wood flooring covers part of the bathroom, while white diamond stone material covers the rest of the floor. Sleek chrome fixtures continue the clean and uncluttered look. Add a few indoor plants to complete this luxurious tropical retreat.


Made by
Andrea Platzer

Similar Floor Plans


More From This Contributor