Modern 3/4 L-Shaped Bathroom Design

72 sq ft
7 m²

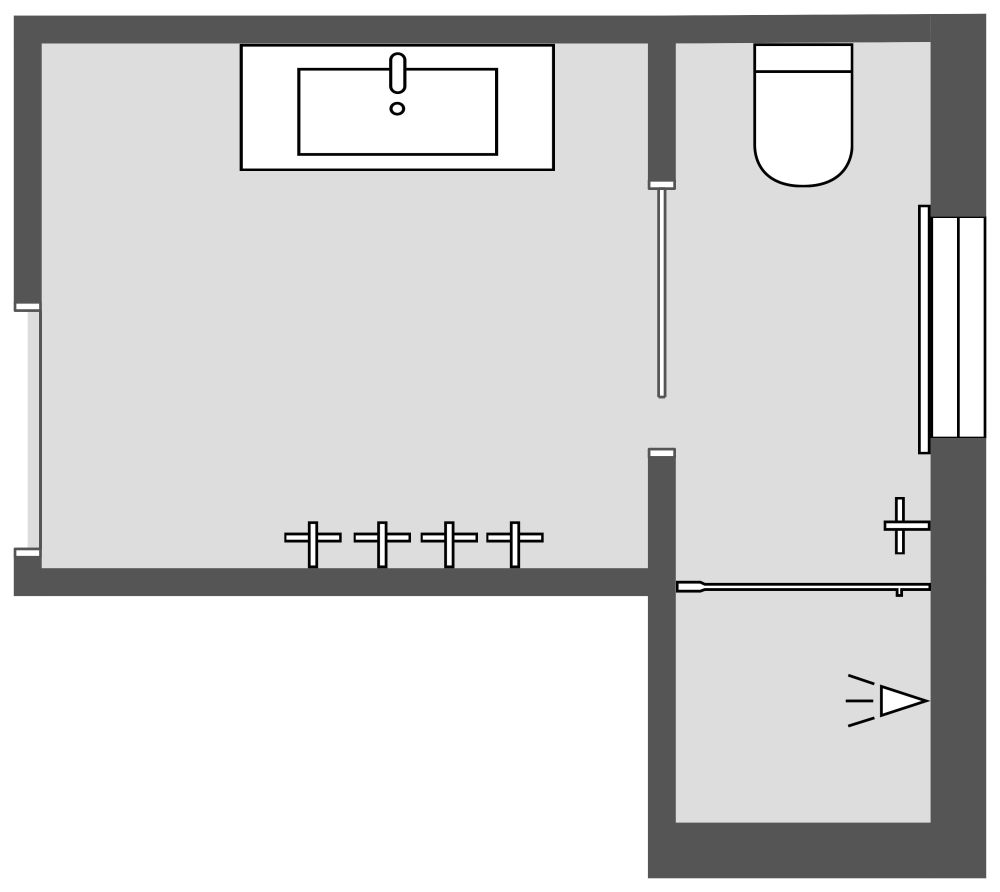
This gorgeous ¾ bathroom has an L-shape footprint and a mid-century modern design aesthetic. Starting with the floor plan, a swing door opens into a dual room space. The entry room contains a vanity sink, with a pocket door leading to a shared toilet and enclosed shower. Mid-century modern style is an eclectic mix of practicality, earthiness, retro colors, and shapes from the 1960s and 70s, plus Scandinavian simplicity. In this bathroom design, the vanity combines a modern shape with mid-century wood materials. The square floor tile, rectangular accent walls, and large mirror bring in the geometric patterns that are iconic of mid-century décor. Fun, space-age lighting is key, such as the round pendant lights shown. The finishing touch is the retro color palette of tangerine orange and teal, combined with the earthy wood doors and window shades.



Similar Floor Plans


More From This Contributor