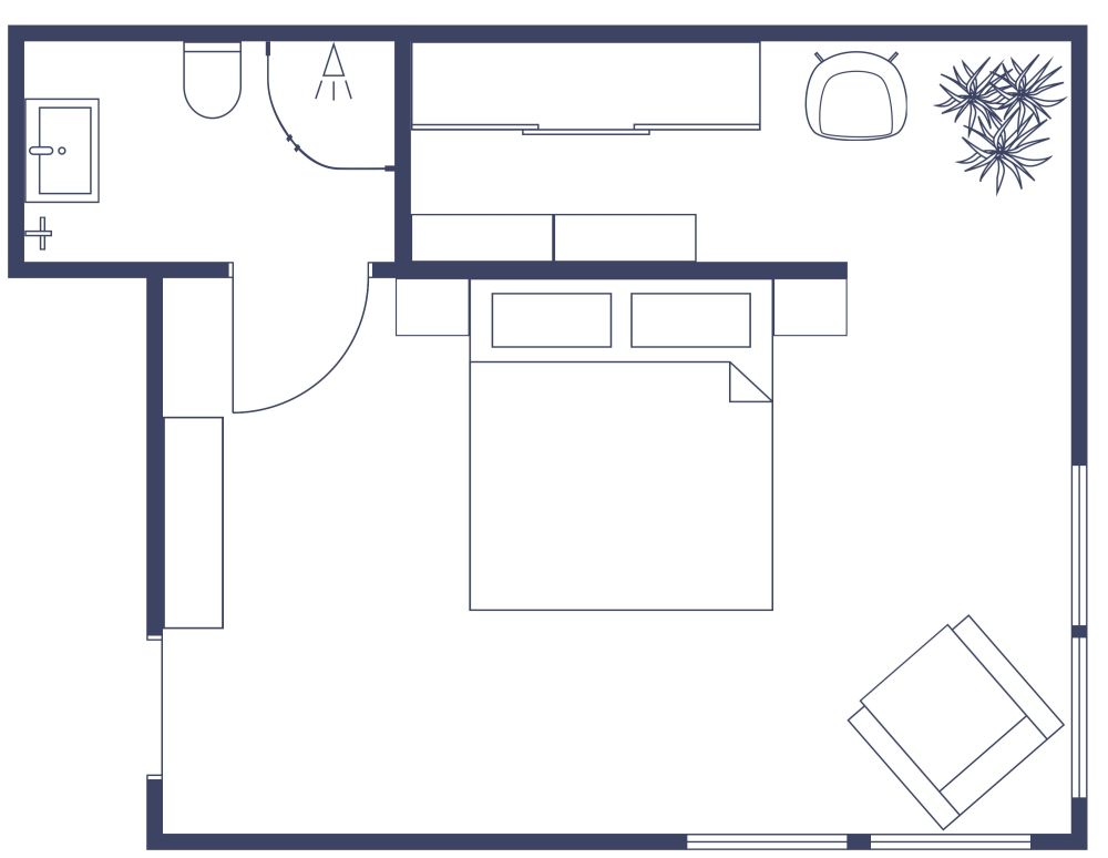
Bedroom Design with Purple Colors

270 sq ft
25 m²

This en suite bedroom design with purple colors is spacious, comfortable, and luxurious. The purple-themed interior blends perfectly with sleek accessories like the marble-top bedroom table for storing books and plants and a round mirror above it. The room has a comfy bedroom seat against four massive sash windows that light up the whole room. The bed is a few steps away and has a nightstand on either side for personalized storage. Above them are two wall sconces for improved nighttime visibility. This luxurious room has a door that leads to the bathroom and toilet. The purple-tiled bathroom has a glass-enclosed bathroom, a toilet, and a sink with a shaving mirror. The other end features a walk-in dressing room ingeniously incorporated, extending the room's spacious feel. The section has a chest of drawers for storage, a wardrobe, a dressing seat, two dressing mirrors, and a plant in the corner for aesthetics.


Made by
Bedroom Designs

Similar Floor Plans


More From This Contributor