Rustic Style Primary Bedroom Design

211 sq ft
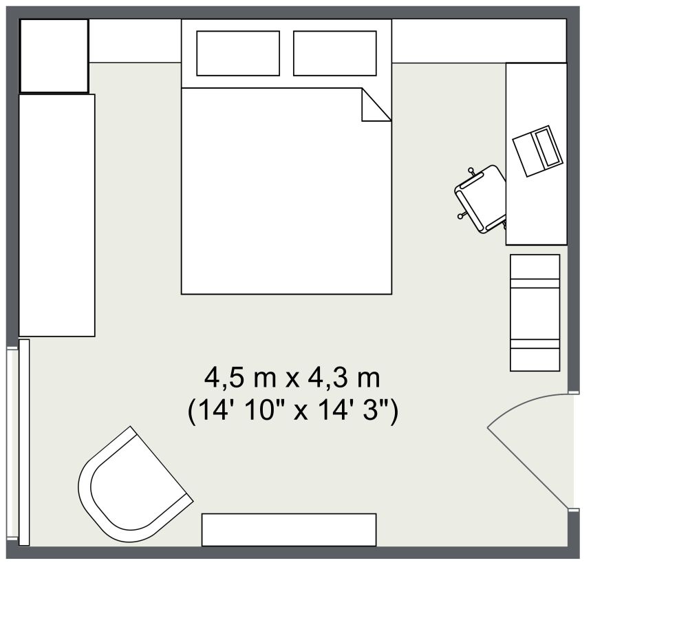
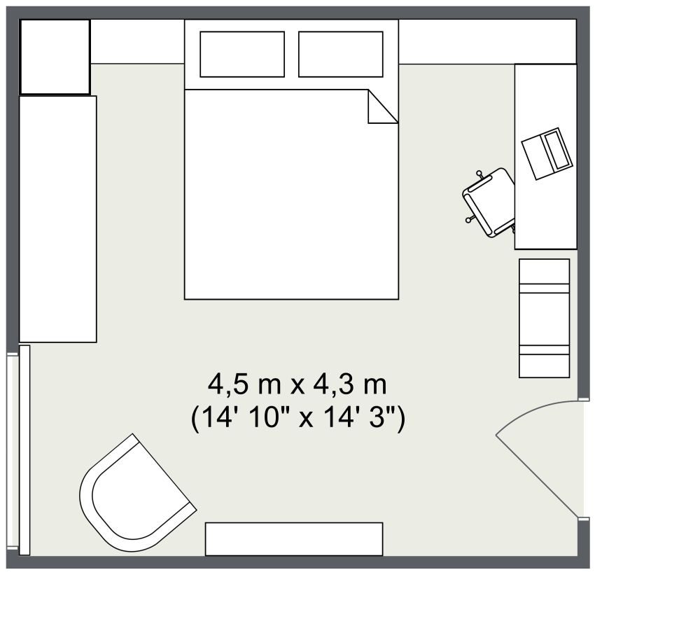
20 m²

Inside this rustic style primary bedroom design, you'll find earthy tones and natural finishes that help to calm and ground you as you wake up to start a new day. The back wall of this bedroom is finished with a classic exposed brick, while neutral-toned hardwood-style flooring adds another dimension to the room's design. With the bed placed at the center of the exposed-brick wall, you'll find plenty of room for identical side tables, as well as a sleek desk or workstation to the right of the bed, and a spacious armoire or dresser on the opposite side. Mount a television on the opposite wall for easy movie nights in bed, and make the far corner of the bedroom across from the doorway a cozy, welcoming reading space.


Made by
Bedroom Designs

Similar Floor Plans


More From This Contributor