How to Make the Most of Your Galley Kitchen
A galley kitchen can feel tight at first glance, but with the right layout, it becomes one of the most efficient kitchen designs you can have.

A galley kitchen can be compact, efficient, and surprisingly easy to work in. With the right layout choices, you can make a small space feel bright, organized, and comfortable to move around in.
This guide walks you through smart ways to plan, design, and style a galley kitchen so it works beautifully for your everyday needs.
What is a Galley Kitchen?
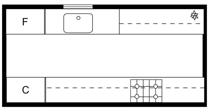
A galley kitchen is a long, narrow layout with an aisle down the center and cabinets, appliances, and work areas on both sides.
These kitchens appear in apartments, small homes, and other compact spaces because they use every inch well and support an efficient workflow.
Some galley kitchens are passthrough-style so you can walk straight through from one end to the other. Others are closed at one end, which can give you space for a wall of storage or a small breakfast nook.

Assessing Your Space
Start with simple measurements. Note the length, width, and height of the room and pay attention to corners or narrow spots that might need extra planning. This helps you understand what appliances will fit and how much storage you can realistically add.
As you measure, check the aisle width. A 3 ft aisle works for one cook, but if more people use the kitchen at the same time, aim for 4–5 ft. This creates a smoother flow and helps keep the space comfortable.
Take a moment to look for hidden opportunities too. Maybe there’s room above the cabinets for extra shelving or unused space beside the fridge that could hold a pull-out pantry. Small choices like these can make a big difference in a narrow kitchen.

Maximizing Storage Space
Storage is essential in a galley kitchen. Cabinets above and below the counters help keep things organized and off the worktops. Open shelving can also work well here, especially if you want a lighter, more airy look.
To make the most of a tight layout, try using your vertical space. Tall cabinets, pull-out drawers, and organizers that fit inside cabinet doors all add storage without eating up the walkway. When your storage works well, the space feels calmer and easier to move around in.

Choosing the Right Appliances
Appliances take up a lot of visual and physical space in a galley kitchen, so proportion matters. Slim or compact models can help free up room, especially when the walkway is narrow.
If you want to keep more counter space open, consider choosing a range instead of a separate cooktop and wall ovens. It gives you the same functionality with a smaller footprint.
Placement matters too. For example, putting the refrigerator near an entrance makes it easy for someone to grab a drink without stepping into the cooking zone. Just check that the door swing won’t block your only entry. A french-door refrigerator can be a smart choice when you want a narrower door clearance.

Planning Your Layout
A few small layout choices can make a galley kitchen feel more open and efficient.
Symmetrical or asymmetrical?
A symmetrical layout mirrors the length of each side and often places key appliances directly across from one another. It creates a clean, balanced look and works well if one person usually cooks.

An asymmetrical layout staggers appliances, which gives two cooks more space to move. A popular approach is to place the sink and cooktop on one side and use the opposite wall for tall cabinets with the oven, microwave, and refrigerator. This keeps the walkway clear and makes the kitchen feel more modern.

Selecting the Right Lighting
Good lighting makes a galley kitchen feel brighter and more inviting. Pendants provide focused light over work areas, while under-cabinet lighting helps illuminate the countertops.
Try choosing fixtures that add light without overwhelming the narrow space. A mix of task lighting and soft ambient lighting keeps the room looking open, warm, and welcoming.
Group appliances around your habits
Think about what you do most often. If you tend to grab produce from the fridge and rinse it right away, placing the refrigerator closer to the sink can make prep easier.
Some people prefer having the sink and cooktop on the same side so they can rinse, chop, and cook without switching sides while holding a knife. Let your own routines guide the setup.

Designing for Functionality
Functionality matters in any kitchen, but especially in a small one. Consider the classic work triangle between the sink, stove, and refrigerator. If these points are easy to move between, the kitchen feels pleasant to work in.
Think about how to use vertical space for storage, and choose multipurpose elements if you have room. Even a small kitchen island or extra counter section on one side can double as prep space and storage.

Styling Your Space
A few thoughtful styling choices can make a compact kitchen feel larger. Light colors brighten the space, and reflective surfaces like stainless steel or glossy tiles help bounce light around.
Open shelving can add both storage and style, especially if you keep it tidy. A simple rug can add warmth and define the walkway. Small touches like plants, artwork, or colorful tools bring personality into an otherwise streamlined space.
Frequently Asked Questions (FAQ)
With the RoomSketcher App, you can plan a galley kitchen layout that meets your needs, from storage and functionality to style and aesthetics. The first step is to measure the space and input the dimensions into the app. From there, you can experiment with different layout options and see how they look in 3D. The app offers a wide range of galley kitchen templates, which can be customized to meet your specific needs and preferences. You can add cabinets, appliances, and other fixtures, and see how they fit into the space. Additionally, the app provides a wide range of design tools and materials, allowing you to experiment with different colors, textures, and finishes.
A galley kitchen layout can feel cramped and claustrophobic, especially if the kitchen is narrow or lacks natural light. The compact layout of a galley kitchen can also limit the storage and countertop space available, making it difficult to prepare and cook meals. However, with proper planning and design, these disadvantages can be minimized, and a galley kitchen can be transformed into a highly functional and stylish space.
The main advantage of a galley kitchen layout is that it is highly efficient and functional. The compact layout allows for easy movement between work areas, making preparing meals and cleaning up afterward easy. Additionally, the galley kitchen's linear design lends itself well to modern and minimalist aesthetics, making it a popular choice for those who prefer a sleek and contemporary look. With the right design and layout, a galley kitchen can be transformed into a highly functional and stylish space that meets all your cooking needs.
Create Your Own Galley Kitchen Layout
In conclusion, a galley kitchen layout may seem challenging to work with, but with the right approach and design, it can be transformed into a functional and stylish space. Don't be afraid to experiment with different design ideas and make the space your own.
With the RoomSketcher app, you can visualize your kitchen design ideas and see how they will look in your space before making any final decisions. So go ahead and try out different design ideas to create a galley kitchen layout that is both functional and beautiful.
Recommended Reads

Make a Small Kitchen Layout Feel Bigger With Clever Design Tricks
Create kitchen floor plans in minutes with the easy-to-use RoomSketcher app and discover how to make a small kitchen layout feel bigger

6 Tips For Designing an L-Shaped Kitchen Layout
We have put together 6 tips to help you create the perfect L-shaped kitchen layout.

Crafting the Ideal Kitchen Island: Layouts, Tips, and Examples
If you are thinking of designing a kitchen with an island or just want to experiment with the different kitchen layout plans, you are in the right place. While kitchen island layouts are still one of the most popular kitchen designs, they can be rather tricky to design.