How to Create an Efficient Cubicle Office Layout
A well-designed cubicle layout helps teams stay productive while maintaining personal space. Whether you’re designing a small office or a large workspace, cubicles can bring flexibility, efficiency, and comfort to your setup.

Cubicles are more than just rows of desks - they’re like building blocks, helping offices create efficient and functional spaces.
A good cubicle layout provides many benefits. It helps employees do their jobs well, offering them a sense of privacy and the ability to concentrate on tasks without distractions.
Cubicles are a cost-effective alternative to building individual office walls, making them a wise choice for budget-conscious offices. And because they can be easily rearranged, cubicles also offer flexibility and adaptability, making them ideal for dynamic work environments.
Typical Cubicle Types and Sizes
Cubicles come in various types and sizes, each tailored to specific tasks and levels of privacy within the office environment.

Call center or telemarketing workstation
Compact and efficient, these cubicles are designed for jobs that involve a lot of phone calls and minimal paperwork, providing a focused space for employees to work.
Typically, these cubicles measure around 4 x 2 ft (1.2 by 0.6 m) in size with a small desk. They may feature high walls and sound buffering panels to provide an environment conducive to phone conversations.
Standard office cubicle
These cubicles balance space and functionality, accommodating computers, paperwork, and personal items. The typical size for a standard office workstation is approximately 6 x 6 ft (about 2 x 2 m).
Cubicles often come with shelves, cabinets, and drawers to help employees organize their workspace and neatly store personal items, documents, and office supplies.
The height of the walls can be customized depending on the desired level of collaboration or privacy.

Manager cubicle
Slightly larger, manager cubicles provide supervisors with extra space and extended desks or tables for meetings and discussions while still maintaining a sense of privacy.
These cubicles are usually around 8 x 8 ft (2.4 x 2.4 m) to 8 x 12 ft (2.4 x 3.5 m) in size, offering ample room for both individual work and collaborative meetings.
Executive office
The grander version of a cubicle, executive workstations are more spacious, comfortable, and designed for high-ranking managers and decision-makers.
These cubicles can vary in size, ranging from 10 x 10 ft (about 3 x 3 m) to larger configurations, providing executives with a more luxurious and well-equipped workspace.
Meeting areas and collaborative zones
It’s a good idea to design some cubicles as meeting areas and collaborative work zones. When planning these spaces, consider the number of people you want to accommodate, which will dictate the appropriate table and cubicle sizes.
For smaller discussions of 2-3 people, a cubicle size of 6 x 6 ft (2 x 2 m) or slightly larger works well. For larger meetings of 8-10 people, a more spacious cubicle of 14 x 10 feet (4.3 x 3m) fosters an environment for brainstorming and idea sharing among multiple team members.
Be sure to integrate collaborative tools like whiteboards, screens, or other interactive devices.
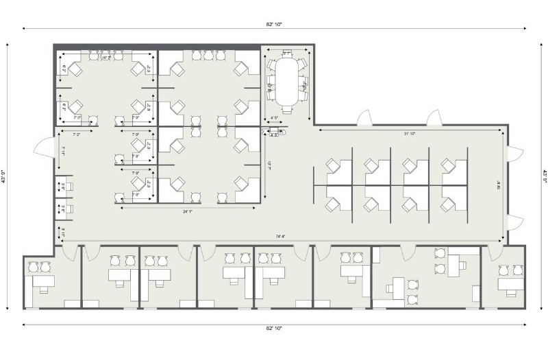
Cubicle Layout Ideas
When it comes to office design, there are a myriad of possibilities for cubicle layouts.
Along a wall
One typical layout features cubicles in a row along a wall. This classic layout is efficient and space-saving.
By aligning cubicles along the walls, workplaces gain a clear division of space, allowing employees to focus on their tasks without unnecessary distractions.
This arrangement also promotes a sense of personal ownership of the workspace, boosting concentration and work efficiency.
Square or rectangular clusters
Another efficient strategy is to place rectangular clusters of 4, 6, 8, or more cubicles in the heart of the office.
By grouping lower-walled cubicles in the center, you can create dynamic, collaborative zones where employees are encouraged to engage in teamwork.
This arrangement facilitates easy communication and idea exchange. On the other hand, adding tall walls to this type of layout allows for more focus and privacy.

Angled workstations
Cubicles strategically arranged at angles introduce a vibrant and open atmosphere. A “120 Degrees” layout groups three desks facing each other, encouraging interaction from various directions.
Employees can collaborate effectively, making the most of the shared space. This dynamic setup sparks creativity and innovation, transforming the workplace into a hub of energetic ideas and initiatives.
Two-person cubicles
Another standard layout involves two people sharing one larger cubicle facing in different directions. This arrangement strikes a balance between teamwork and individual focus.
When employees need to work together closely, they can easily communicate while having the option to concentrate independently when necessary.
This arrangement fosters a sense of partnership and mutual understanding, crucial for tasks that require joint efforts and concentration.

Design Your Office with RoomSketcher
Create a functional and professional cubicle layout that fits your team’s needs. With RoomSketcher, you can:
- Draw office floor plans with accurate measurements
- Experiment with different cubicle layouts and furniture setups
- Visualize your design in 2D and 3D
- Share floor plans with colleagues or clients
- Order professional-quality floor plans from our expert illustrators
Related Articles

How to Choose the Best Conference Room Layout for Your Meetings
If you are planning one or more conference room layouts, you’ll want to think about the goals for each room, learn the typical items with which to furnish a conference room and check out the most common layouts.

Create a Functional Office Layout with These Key Measurements
As you plan your new office layout, it’s important to consider the space required around each piece of furniture. In this post, we’ll give you the information you need.

10 Best Floor Plan Software Tools for Office and Workplace Design
Are you struggling to find the best floor plan software for office and workplace design? We’ve compared and ranked the top tools to help you plan efficient layouts.