One-Bedroom House Plans: Uses, Benefits, and Layout Ideas
One-bedroom house plans offer the perfect balance of comfort and practicality. With open layouts and clever storage solutions, a one-bedroom plan can feel surprisingly spacious while staying affordable.

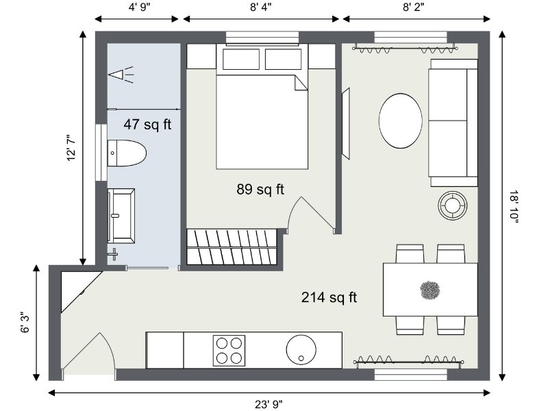
Typically sized between 400 and 1000 square feet (about 37 - 92 m2), one-bedroom house plans usually include one bathroom and occasionally an additional half bath or powder room.
Today's floor plans often contain an open kitchen and living area, plenty of windows or high ceilings, and modern fixtures.
If you are looking to create a vacation cottage, a rental unit or guest house on your property, or even a smaller home in which to live, this type of plan may be perfect for you.
Small Home, Big Benefits
One bedroom homes can have many benefits:
- Affordability.
Typically, one-bedroom units are more affordable due to the lower square footage and lot size requirements. Plus, you'll have fewer furniture items and accessories to purchase to complete the unit. - Less Cleaning and Maintenance.
Lower square footage has a significant benefit in reducing the time you'll spend on cleaning and maintenance - giving you more money and more time for your favorite activities. - Simplicity.
Who doesn't long for a more simple life? Smaller homes often motivate you to pare down your belongings to those that give you the most pleasure.

Top Uses
Entry-level home
Many singles or couples starting out build smaller homes on their own land or shared property. A one-bedroom house can be an affordable and practical first step.

Vacation cottage or bungalow
A one-bedroom house plan works well as a small vacation home, whether by the lake, in the mountains, or near the beach.
Perfect for singles or couples, you can still host extra guests by adding a sofa bed or daybed in the living room.

Income from an accessory dwelling unit (ADU)
Instead of renting out space inside your home, consider a separate one-bedroom ADU.
This gives your renters privacy while creating extra income. Always check local rules before adding an ADU.

How to Make the Most of a Small Space
With limited square footage, smart choices can make your 1 bedroom house plan feel larger and more functional.
Many layouts include a porch, patio, or balcony, so set it up with a sofa and small table to add an extra living and dining area.
Inside, choose furniture that does double duty and provides storage, such as:
- A platform bed with drawers or a lift system for linens
- Bedside tables with shelves or drawers
- A closet system to maximize space
- A vanity with drawers instead of a pedestal sink
- A medicine cabinet for hidden bathroom storage
Even small changes like side tables with drawers in the living room can make a big difference in keeping your home organized and comfortable.

Create Your Floor Plan with RoomSketcher
RoomSketcher makes it easy to explore your ideas. Create floor plans, furnish them, and see your home instantly in 3D.
- Quick drag-and-drop floor plan drawing
- Large library of furniture and fixtures
- Replace materials to test colors and finishes
- Export professional 2D and 3D Floor Plans
- View your design in Live 3D and generate 3D Photos
Related Articles

Best One-Bedroom Apartment Floor Plans
A one-bedroom apartment is a popular choice for anyone who wants just the right amount of space without the upkeep of a larger home. Check out the most popular layouts, and use them as templates.

Studio Apartment Layouts and Floor Plan Inspiration
A studio apartment combines living, dining, and sleeping into one main room. Learn how to design a floor plan that works, from common layouts to clever storage and decorating ideas.

Bedroom Floor Plans: Ideas and Layouts for Every Space
Bedrooms come in many shapes and sizes, but the key to a successful design is a thoughtful floor plan. Here are some ideas to inspire layouts for children, teens, guests, and adults alike.