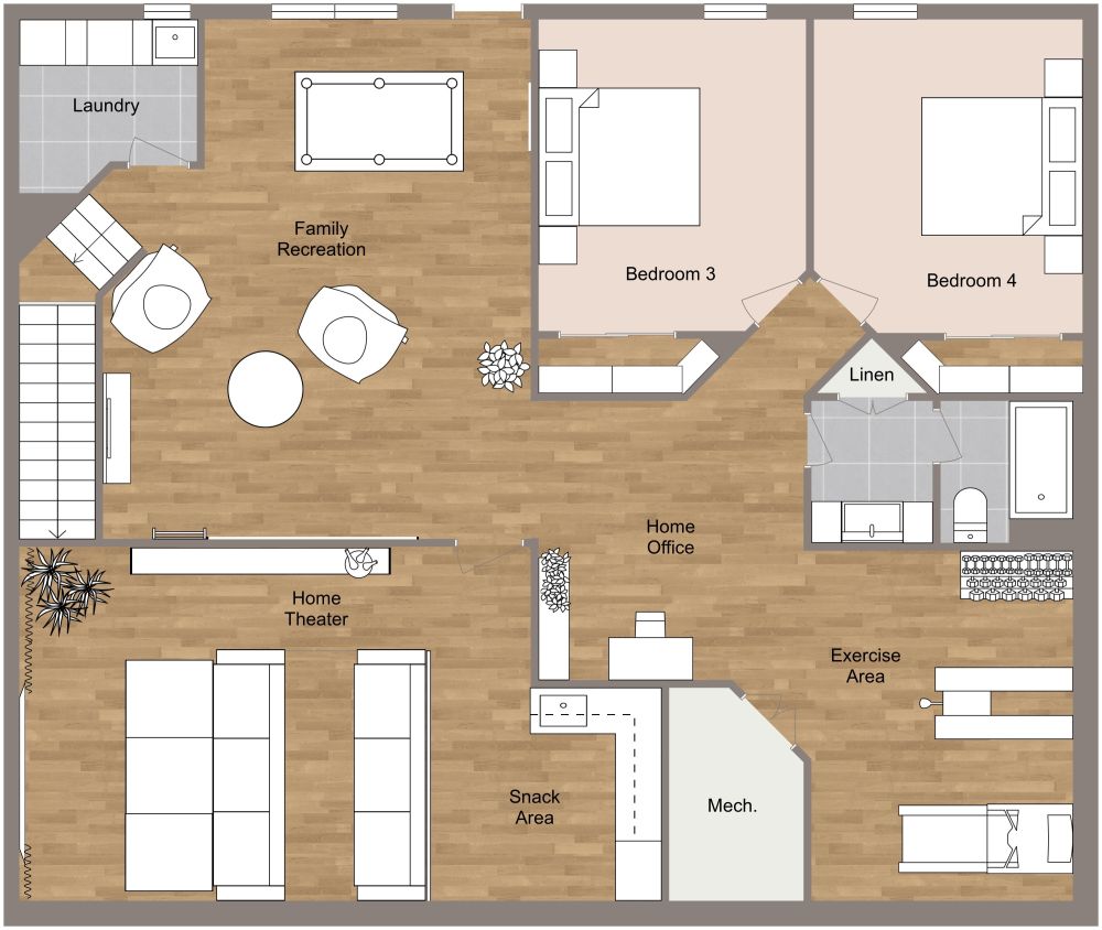
Floor Plan Basement

Modern, open, and refreshing, this floor plan basement is what dreams are made of. Walk down the stairs to find an open seating area with plenty of room for a pool table. This area flows seamlessly into a small office space and home gym area, adding both comfort and practicality to the space. Two side-by-side bedrooms include a queen-sized bed, two side tables, and a single window. The bathroom has a separate sink area and contemporary green tile floors. A small mudroom is located on the other side of the basement, complete with a sink and bold, detailed floors. The star of the space is the home theater which includes plush white sofas, a buffet table, and an oversized screen. Your family and friends will love spending time in this basement that's as playful as it is functional.

Made by
Home Designs
1691 sq ft
157 m2
1 Level
2 Bedrooms
1 Bath

This plan can be customized

Edit This Project

Want to edit this floor plan or create your own?

Download App

Similar Floor Plans


More From This Supplier