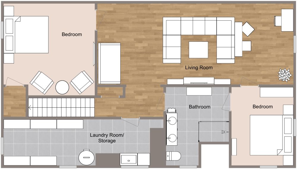
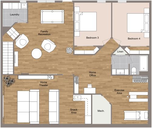
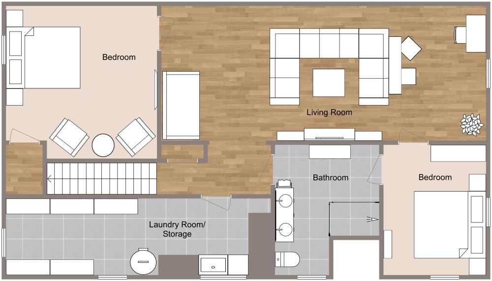
Basement Layout

Cozy charm is the theme of this unforgettable basement layout. Contemporary hardwood flooring and crisp white walls provide the foundation for all of the living spaces found in this basement. A spacious rectangular family room includes an oversized sectional, entertainment center, and small desk area. A modern-day bed is positioned in the corner of the space, providing additional seating room as well as a place for guests to sleep when needed. The basement comes complete with two bedrooms, one slightly larger than the other, and a full-size bathroom. The bathroom features slate gray tile floors and a double sink. A long, rectangular mud room includes added storage space and a utility sink. Bright, inviting, and lovely, your family will feel right at home when you make this basement layout your own.

Made by
Home Designs
1157 sq ft
108 m2
1 Level
2 Bedrooms
1 Bath

This plan can be customized

Edit This Project

Want to edit this floor plan or create your own?

Download App

Similar Floor Plans


More From This Supplier