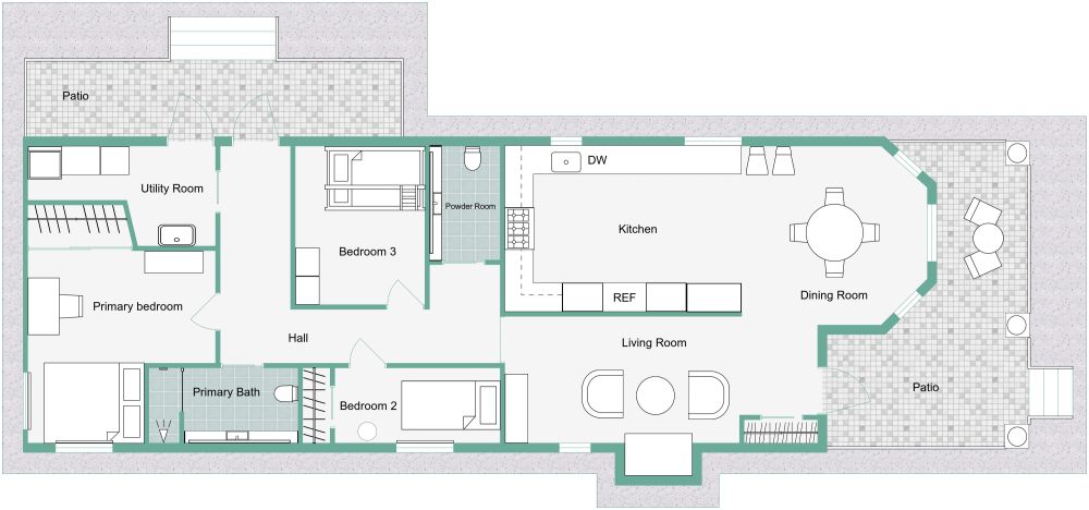
Modern Shotgun House Plan

1202 sq ft
112 m²
1 Level
3 Bedrooms
1 Bath
1 Half Bath

If you are looking for a home that perfectly blends modern luxury and classic charm, look no further than this 1,200-square-foot modern shotgun house plan. With traditional touches like its brick front patio and formal living room chandelier and its high-end finishes like a six-burner stovetop and walk-in rain shower, this floor plan is perfect for those who enjoy classic design but don't want to sacrifice modern amenities. What really sets this home apart is its large gourmet kitchen. No longer will you have to worry about storage or countertop space, as this spacious kitchen has all the room you could need to host lavish dinner parties for friends and family without worrying about running out of workspace.


Made by
Home Designs

Similar Floor Plans


More From This Contributor